Оренда
 
              
                 
                Усі фото (12)
              
              
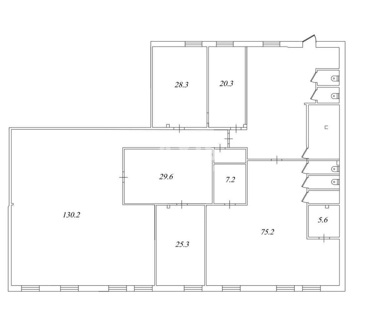
          Офіс вул. Межигірська 87А, 382м2
- Додати в обране
- 
              Подiлитись посиланням
Тип ринку
                Вторинний ринок
              Вулиця
                
                  вул. Межигірська 87А
              Назначение
                Офісне приміщення
              Поверх
                3 Поверх
              Поверховість
                3 поверховий будинок
                
              Загальна площа
                382 м2
              Загальний стан
                З ремонтом
              Ціна:
              109 131 грн.
              2 598 USD
            Опис об'єкту
          Офісне приміщення. Бізнес-центр «Межигірський». Поділ, метро Тараса Шевченка, три хвилини пішки. На території цілодобовий пост фізичної охорони обладнано тривожною кнопкою виклику поліції та відеоспостереження 24/7. Інфраструктура: транспортна розв'язка, ресторан, кафе, бар, відділення пошти, аптека, метро, відділення банку, банкомат, супермаркет, ТРЦ, офіси, бізнес центр, центр міста.
Додаткова інформація
           
                   
                   
                   
                   
                   
                   
                   
                   
                   
                   
                   
                           
                           
                          