Rent
 
              
                 
                All photos (12)
              
              
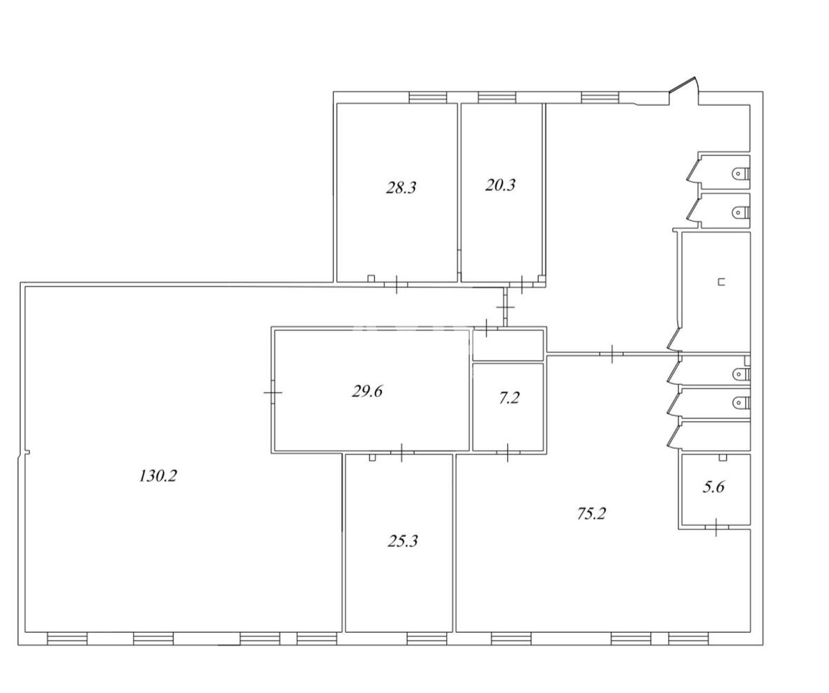
          Office vul. Mezhygirs'ka 87А, 382m2
- Add to favorites
- 
              Share link
Market type
                Secondary market
              Street
                
                  vul. Mezhygirs'ka 87А
              Purpose
                Office Premise
              Floor
                3 Floor
              Number of storeys
                3 storey house
                
              Total area
                382 м2
              General state
                With repair
              Price:
              109 131 UAH
              2 598 USD
            Description of the object
          Office space. Mezhyhirskyi business center. Podil, Taras Shevchenko metro station, three minutes on foot. On the territory there is a round-the-clock physical security post equipped with a panic button for calling the police and 24/7 video surveillance. Infrastructure: transport interchange, restaurant, cafe, bar, post office, pharmacy, subway, bank branch, ATM, supermarket, shopping mall, offices, business center, city center.
Additional Information
           
                   
                   
                   
                   
                   
                   
                   
                   
                   
                   
                   
                           
                           
                          