Оренда

Усі фото (13)
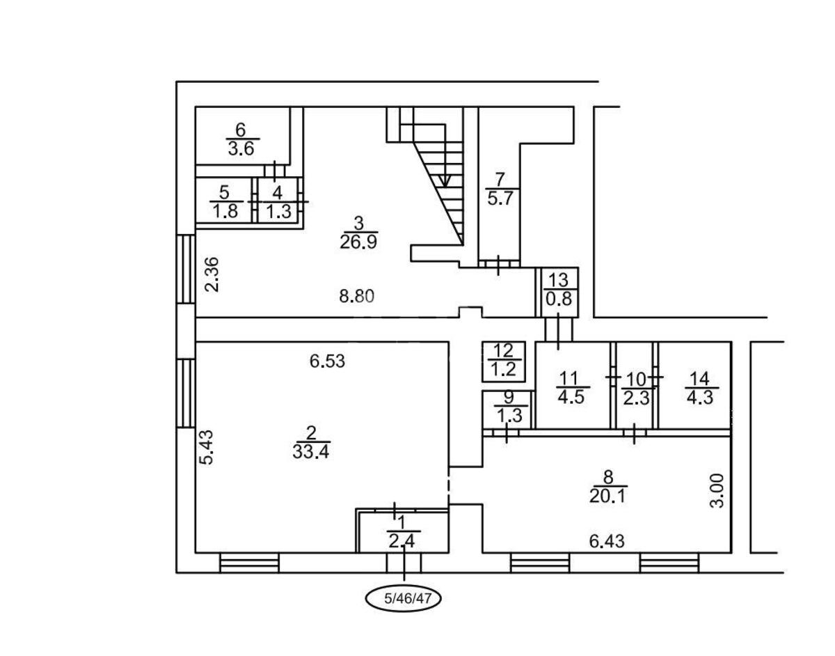
Офіс вул. Мечникова 11, 107м2
- Додати в обране
-
Подiлитись посиланням
Тип ринку
Вторинний ринок
Вулиця
вул. Мечникова 11
Назначение
Офісне приміщення
Поверх
1 Поверх
Поверховість
5 поверховий будинок
Загальна площа
107 м2
Загальний стан
З ремонтом
Ціна:
176 771 грн.
4 288 USD
Опис об'єкту
Офісне приміщення. Приміщення розташоване у дуже вигідному бутіковому місці, по сусідству поряд із входом у ЖК 'Signature Residence', по вулиці Мечникова 11. Приміщення може ідеально підійти для розміщення відділення банку, агенства нерухомості, парфумерного магазину, салону краси чи магазину косметики, ювелірного магазину, бутіка брендового одягу та аксесуарів, кафетерію тощо.
Додаткова інформація