Оренда

Усі фото (15)
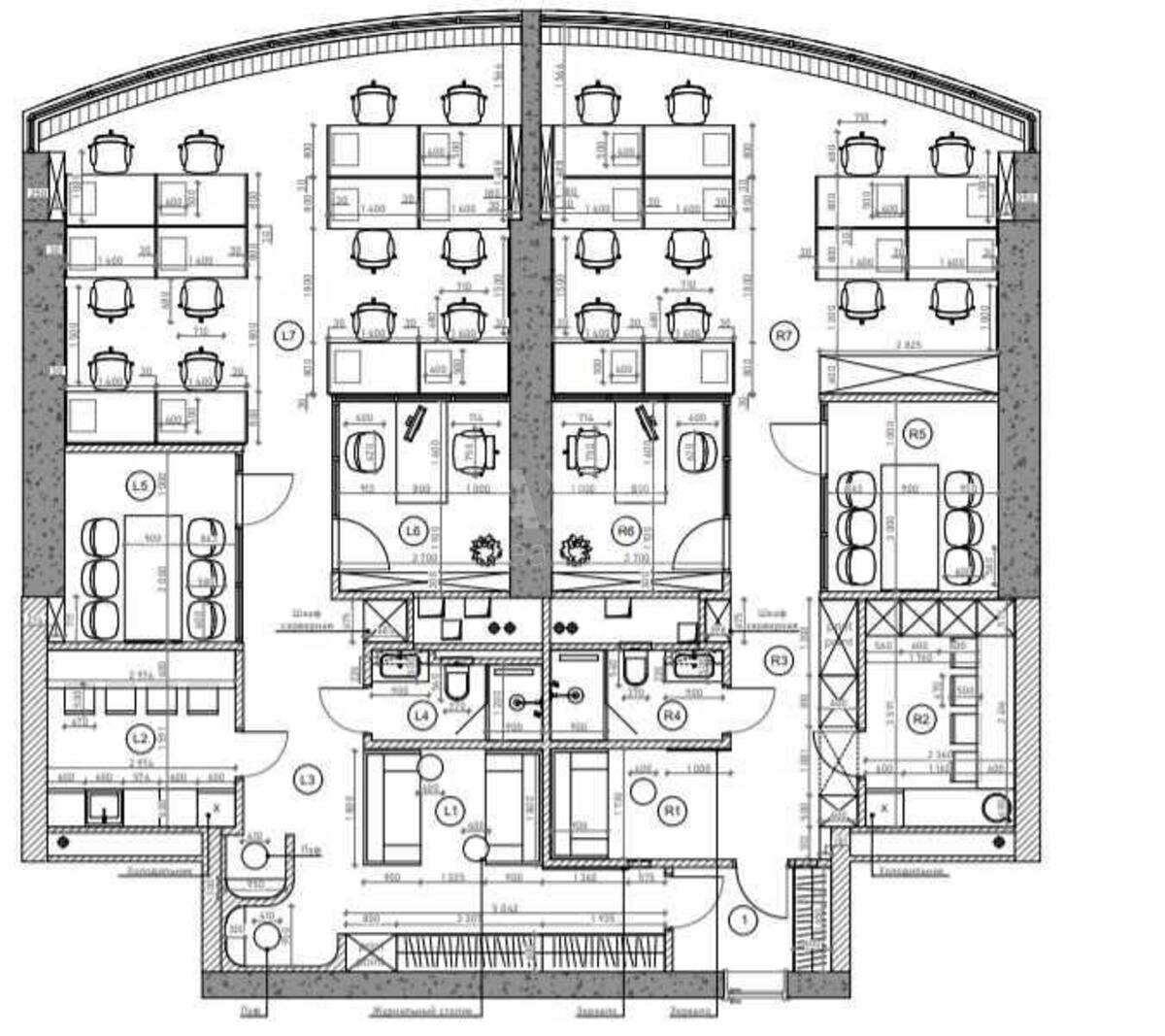
Офіс узв. Кловський 7, 190м2
- Додати в обране
-
Подiлитись посиланням
Тип ринку
Вторинний ринок
Вулиця
узв. Кловський 7
Назначение
Офісне приміщення
Поверх
15 Поверх
Поверховість
46 поверховий будинок
Загальна площа
190 м2
Загальний стан
З ремонтом
Ціна:
198 278 грн.
4 750 USD
Опис об'єкту
Офісне приміщення. Стан приміщення – ідеальний, повністю новий ремонт, панорамні вікна. Застосовано технології акустичного дизайну – офіс повністю знешумлений. Офіс повністю укомплектований сучасними якісними меблями. На кухні вся необхідна для офісу техніка: холодильник, плита, мікрохвильова піч, чайник. Бойлер. Система кондиціювання, клімат-контроль.
Додаткова інформація