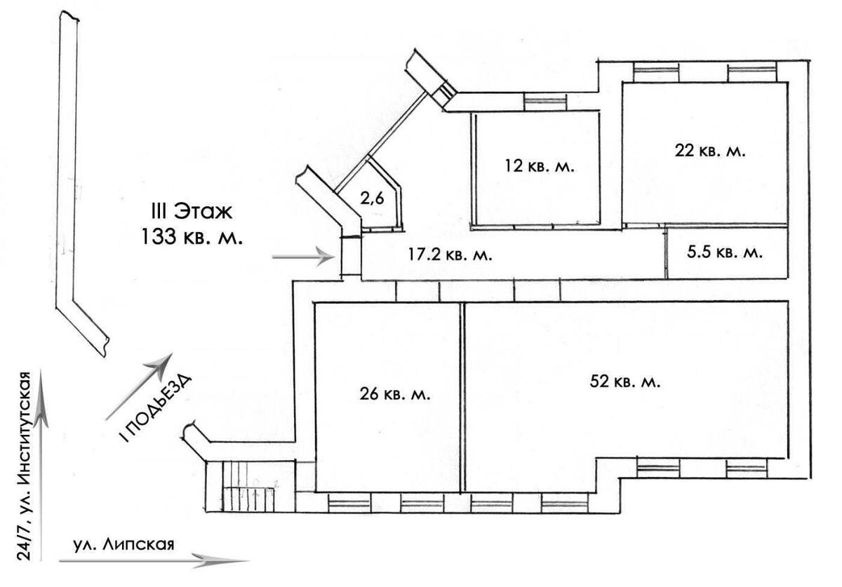
Офіс вул. Інститутська 24/7, 133м2

  • Печерський район вул. Інститутська 24/7
  • Код: RC-218-898
  • Добавлено: 25.02.2026
  • Додати в обране
Тип ринку
Вторинний ринок
Вулиця
вул. Інститутська 24/7
Назначение
Офісне приміщення
Поверх
3 Поверх
Поверховість
6 поверховий будинок
Загальна площа
133 м2
Загальний стан
З ремонтом
Ціна:
29 999 грн.
692 USD
Опис об'єкту

Офісне приміщення. 133 м2, 3/6, ліфт, без меблів, є комора. всі вікна на Липську та у двір). 133 кв.м, (24, 25, 52, 12 кв.м) 4 кімнат, зал 52 кв.м, євроремонт. Кондиціонери, сигналізація Офісний ремонт, центр міста, гарна транспортна розв'язка. паркування в закритому дворі, що охороняється, входить у вартість оренди.

Схожі пропозиції