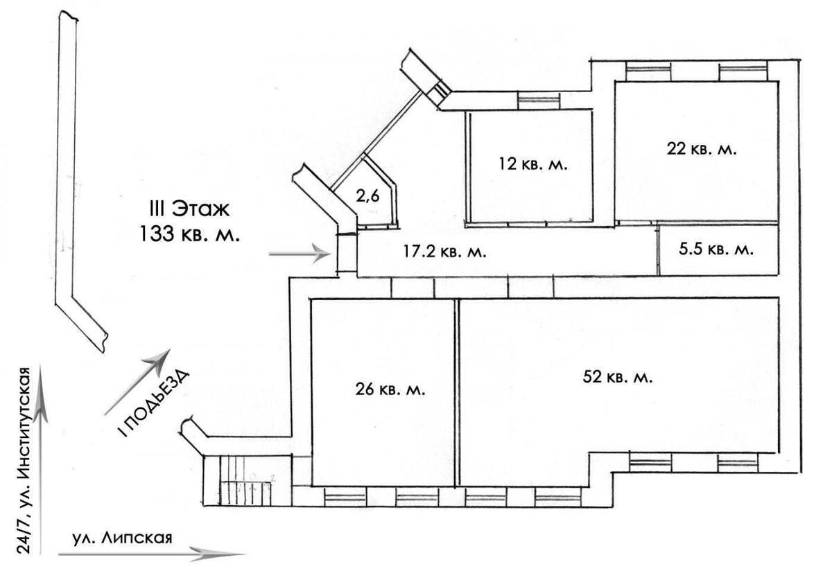
Офис ул. Институтская 24/7, 133м2

  • Печерский район ул. Институтская 24/7
  • Код: RC-218-898
  • Добавлено: 25.02.2026
  • Добавить в избранное
Тип рынка
Вторичный рынок
Улица
ул. Институтская 24/7
Призначення
Офисное помещение
Этаж
3 Этаж
Этажность
6 этажный дом
Общая площадь
133 м2
Общее состояние
С ремонтом
Цена:
29 999 грн.
692 USD
Описание объекта

Офисное помещение. 133 м2, 3/6, лифт, без мебели, есть кладовая. все окна на Липскую и во двор). 133 кв.м, (24, 25, 52, 12 кв.м) 4 комнат, зал 52 кв.м, евроремонт. Кондиционеры, сигнализация Офисный ремонт, центр города, хорошая транспортная развязка. парковка в закрытом охраняемом дворе входит в стоимость аренды.

Похожие предложения