Оренда

Усі фото (14)
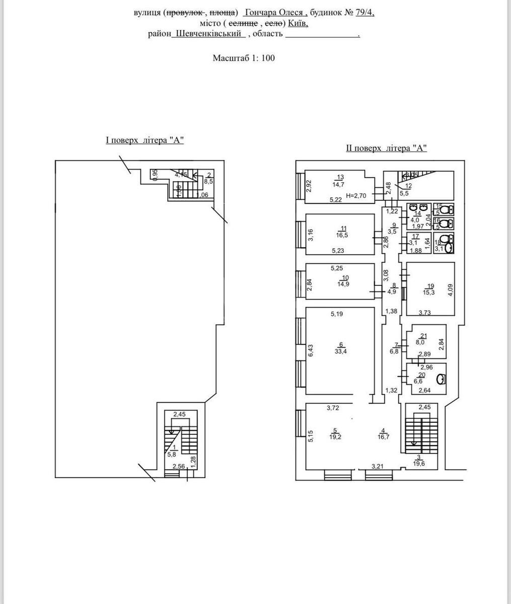
Офіс вул. Гончара Олеся 79, 200м2
- Додати в обране
-
Подiлитись посиланням
Тип ринку
Вторинний ринок
Вулиця
вул. Гончара Олеся 79
Назначение
Офісне приміщення
Поверх
2 Поверх
Поверховість
5 поверховий будинок
Загальна площа
200 м2
Загальний стан
З ремонтом
Ціна:
103 264 грн.
2 500 USD
Опис об'єкту
Офісне приміщення. Фасадний вхід, опен спейс та кабінети. Кондиціонування, охоронна сигналізація. С/в, кухня. Косметичний ремонт. Можливо під магазин. Поряд 'Сільпо'.
Додаткова інформація