Аренда

Все фото (14)
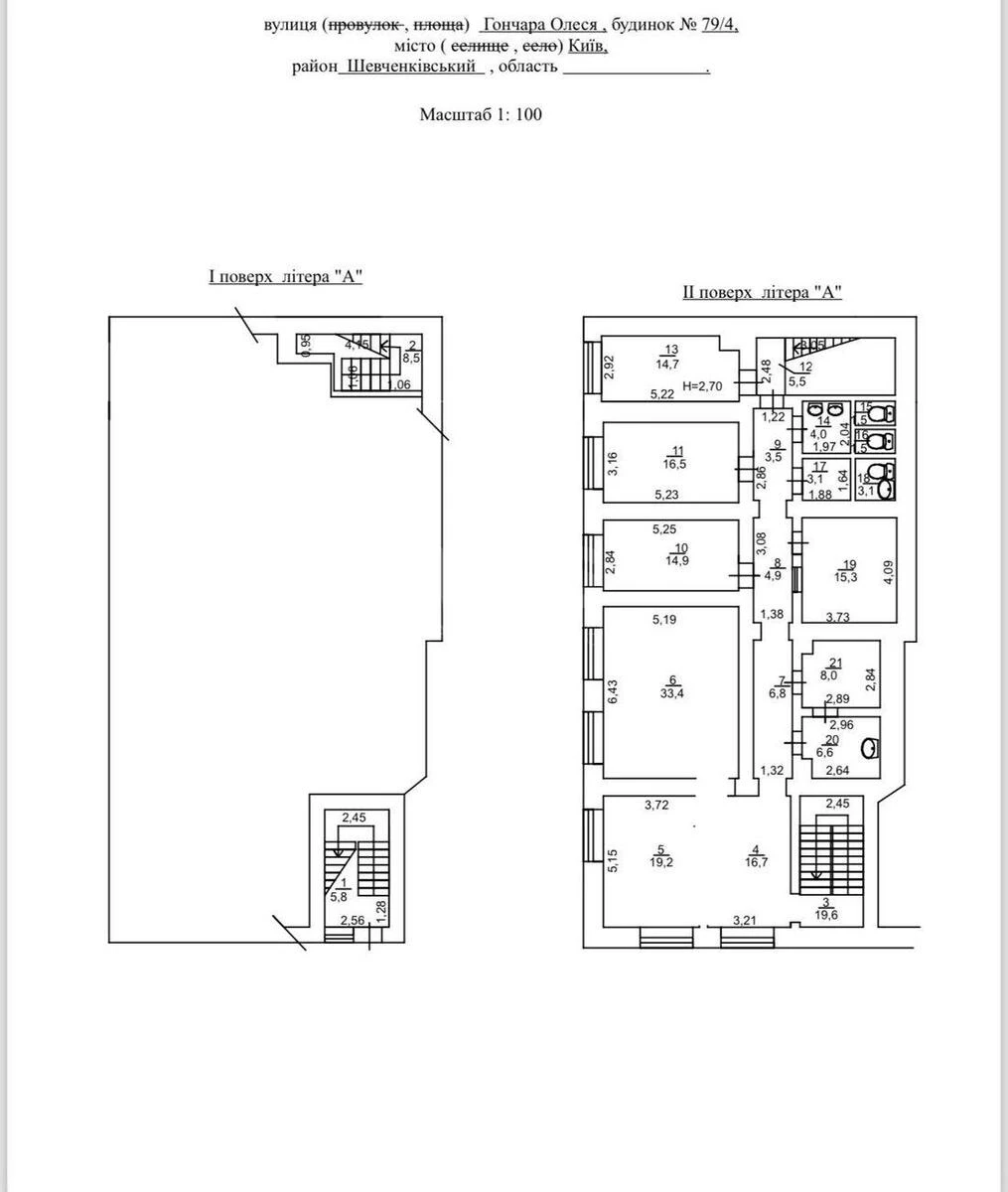
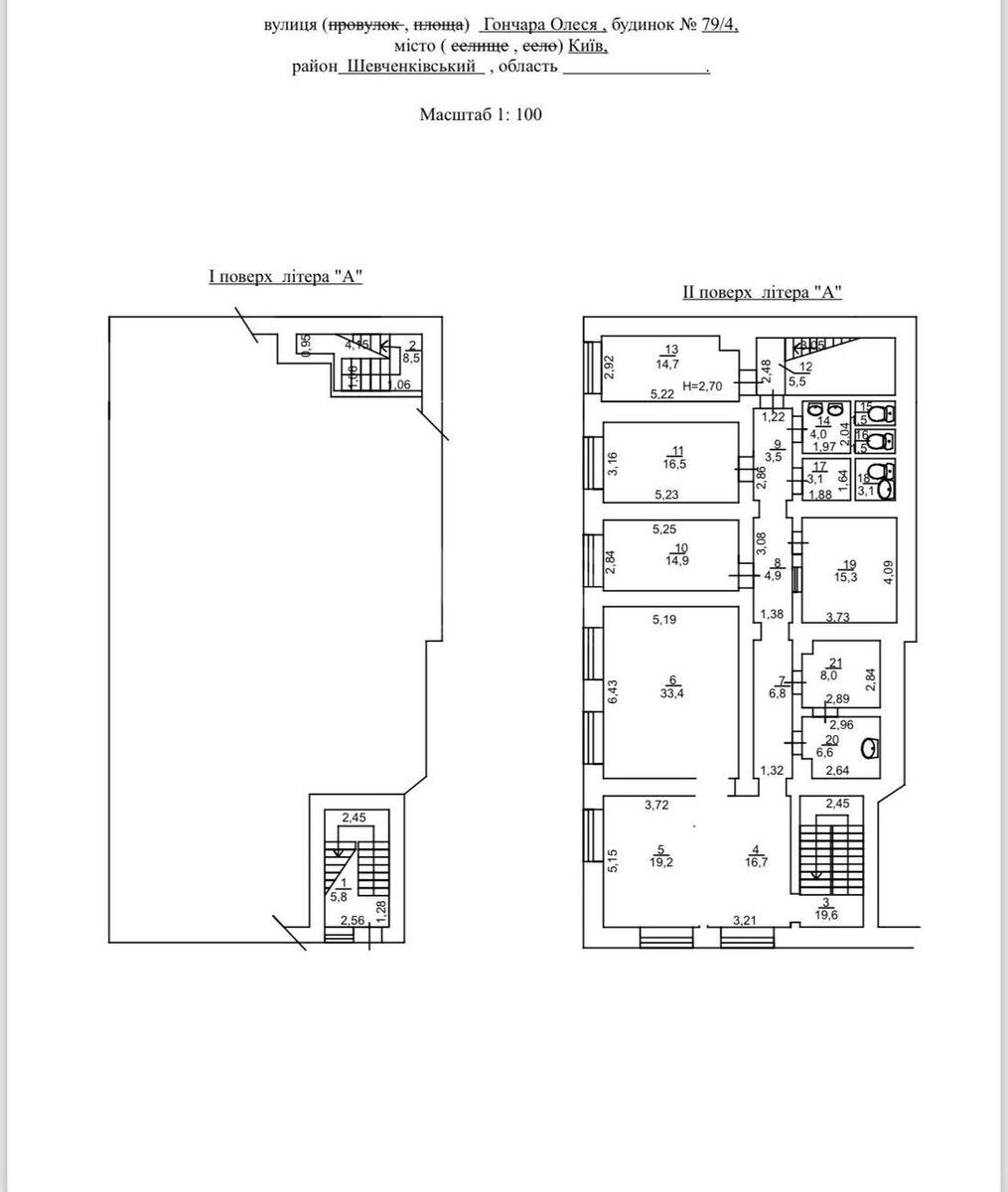
Офис ул. Гончара Олеся 79, 200м2
- Добавить в избранное
-
Поделиться ссылкой
Тип рынка
Вторичный рынок
Улица
ул. Гончара Олеся 79
Призначення
Офисное помещение
Этаж
2 Этаж
Этажность
5 этажный дом
Общая площадь
200 м2
Общее состояние
С ремонтом
Цена:
103 264 грн.
2 500 USD
Описание объекта
Офисное помещение. Фасадный вход, опен спейс и кабинеты. Кондиционирование, охранная сигнализация. С/у, кухня. Косметический ремонт. Возможно под магазин. Рядом 'Сильпо'.
Дополнительная информация