Продаж

Усі фото (13)
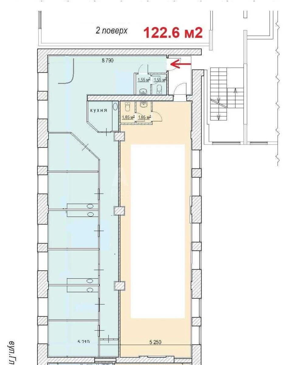
Офіс вул. Глибочицька 40, 122м2
- Додати в обране
-
Подiлитись посиланням
Тип ринку
Вторинний ринок
Вулиця
вул. Глибочицька 40
Назначение
Офісне приміщення
Поверх
2 Поверх
Поверховість
5 поверховий будинок
Загальна площа
122 м2
Загальний стан
З ремонтом
Ціна:
6 394 192 грн.
153 000 USD
Опис об'єкту
Офісне приміщення. Другий поверх, фасадні вікна, площа- 122 м2. Ресепшен, санвузол, кухня та шість окремих кабінетів (в чотири кабінети проведена вода). В даний час облаштоване і працює, як клініка. Всі комуніукації, охорона. зручно під різні види діяльності.
Додаткова інформація