Sell

All photos (13)
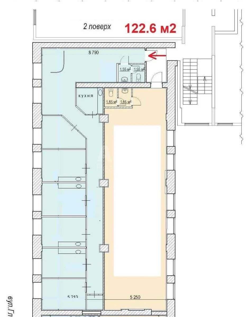
Office vul. Glybochyc'ka 40, 122m2
- Add to favorites
-
Share link
Market type
Secondary market
Street
vul. Glybochyc'ka 40
Purpose
Office Premise
Floor
2 Floor
Number of storeys
5 storey house
Total area
122 м2
General state
With repair
Price:
6 394 192 UAH
153 000 USD
Description of the object
Office space. Second floor, front windows, area - 122 m2. Reception, bathroom, kitchen and six separate offices (four offices have water supply). Currently equipped and working as a clinic. All communications, security. convenient for various types of activities.
Additional Information