Офіс вул. Бурмистенка 9/10, 77м2

  • Голосіївський район вул. Бурмистенка 9/10
  • Код: SC-219-947
  • Добавлено: 31.01.2026
  • Додати в обране
Тип ринку
Вторинний ринок
Вулиця
вул. Бурмистенка 9/10
Назначение
Офісне приміщення
Поверх
1 Поверх
Поверховість
5 поверховий будинок
Загальна площа
77 м2
Загальний стан
З ремонтом
Ціна:
2 355 196 грн.
55 000 USD
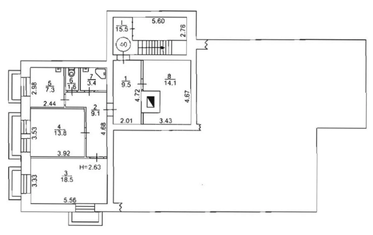
Опис об'єкту

Офісне приміщення. риміщення загальною площею 77,3 м2, можна використовувати під офіс, інтернет-магазин, салон краси тощо. Розташовані в цокольній частині 5-поверхового жилого будинку. Якісний ремонт але вже потребує косметики. Комунікації: електроенергія, централізоване опалення, вода, каналізація, охоронна сигналізація, інтернет, відеодомофон. Паркування авто можливе у дворі або уздовж проїзжої частини. Зосвім поруч магазин АТБ-Маркет, трохи подалі значна кількість інших дрібних магазинів, кафе, аптеки тощо. Зручна транспортна розв;язка.

Схожі пропозиції