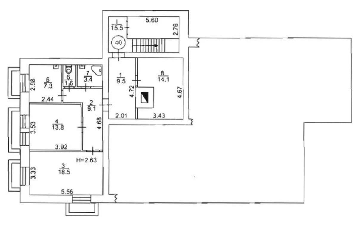
Office vul. Burmystenka 9/10, 77m2

  • Holosiivskyi District vul. Burmystenka 9/10
  • Code: SC-219-947
  • Added by: 31.01.2026
  • Add to favorites
Market type
Secondary market
Street
vul. Burmystenka 9/10
Purpose
Office Premise
Floor
1 Floor
Number of storeys
5 storey house
Total area
77 м2
General state
With repair
Price:
2 355 196 UAH
55 000 USD
Description of the object

Office space. he premises with a total area of 77.3 m2 can be used for office, online store, beauty salon, etc. Located in the basement of a 5-storey residential building. High-quality renovation but already in need of cosmetics. Communications: electricity, centralized heating, water, sewerage, burglar alarm, internet, video intercom. Parking is possible in the yard or along the roadway. There is an ATB-Market store nearby, a significant number of other small shops, cafes, pharmacies, etc. Convenient transportation.

Similar offers