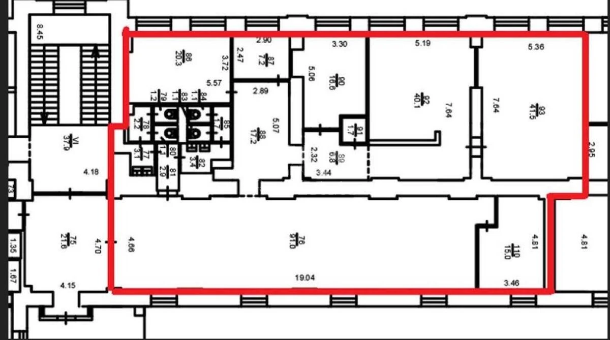
Офіс вул. Бульварно-Кудрявська 24, 336м2

  • Шевченківський район вул. Бульварно-Кудрявська 24
  • Код: RC-206-477
  • Добавлено: 25.02.2026
  • Додати в обране
Тип ринку
Вторинний ринок
Вулиця
вул. Бульварно-Кудрявська 24
Назначение
Офісне приміщення
Поверх
1 Поверх
Поверховість
4 поверховий будинок
Загальна площа
336 м2
Загальний стан
З ремонтом
Ціна:
259 858 грн.
6 000 USD
Опис об'єкту

Офісне приміщення. Приміщення з ремонтом, можливе проведення косметичного ремонту за домовленістю, здається без меблів (можливе укомплектування за запитом). Має зручне планування, що включає зони open-space та кабінети, кухню та санвузли. Технічні характеристики БЦ: Оптико-волоконні комунікації, можливе підключення міні-АТС. Система HVAC (вентиляція та кондиціонування). Система UPS (забезпечує безперебійне електроживлення охоронних систем, пожежної автоматики, аварійного освітлення та серверних систем). Власна трансформаторна підстанція (2 × 630 кВт) Центральне водопостачання, опалення та каналізація.

Схожі пропозиції