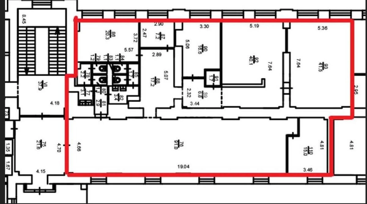
Офис ул. Бульварно-Кудрявская 24, 336м2

  • Шевченковский район ул. Бульварно-Кудрявская 24
  • Код: RC-206-477
  • Добавлено: 25.02.2026
  • Добавить в избранное
Тип рынка
Вторичный рынок
Улица
ул. Бульварно-Кудрявская 24
Призначення
Офисное помещение
Этаж
1 Этаж
Этажность
4 этажный дом
Общая площадь
336 м2
Общее состояние
С ремонтом
Цена:
259 858 грн.
6 000 USD
Описание объекта

Офисное помещение. Помещение с ремонтом, возможно проведение косметического ремонта по договоренности, сдается без мебели (возможно укомплектование по запросу). Имеет удобную планировку, включающую зоны open-space и кабинеты, кухню и санузлы. Технические характеристики БЦ: Оптико-волоконные коммуникации, возможно подключение мини-АТС. Система HVAC (вентиляция и кондиционирование). Система UPS (обеспечивает бесперебойное электропитание охранных систем, пожарной автоматики, аварийного освещения и серверных систем). Собственная трансформаторная подстанция (2 × 630 кВт) Центральное водоснабжение, отопление и канализация.

Похожие предложения