Продаж

Усі фото (13)
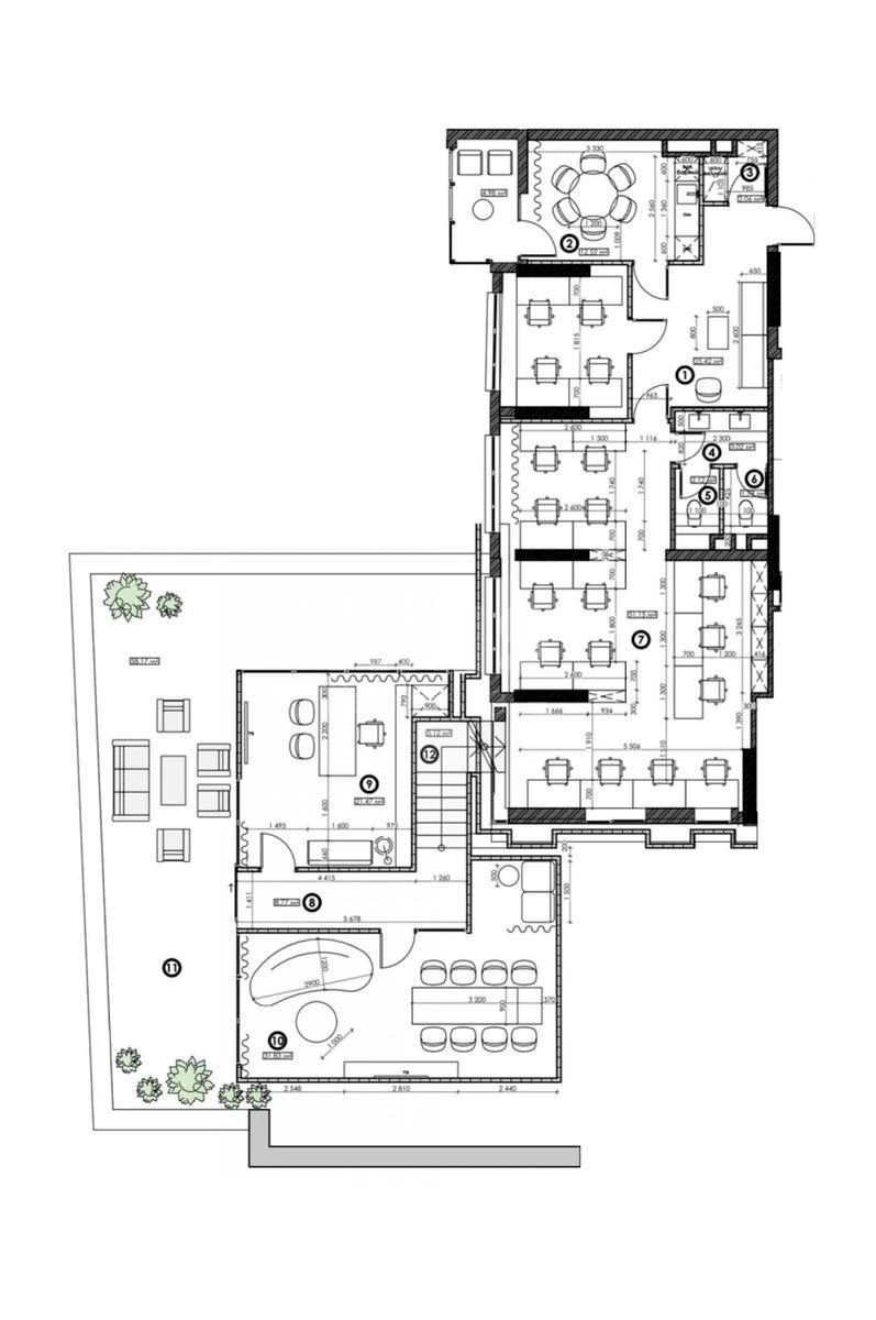
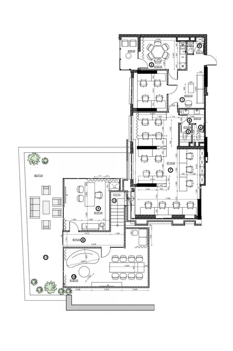
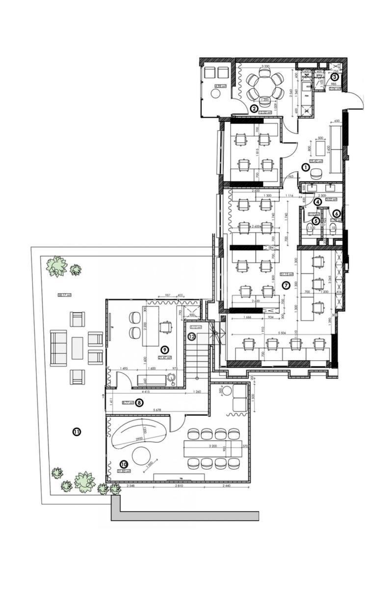
Офіс вул. Бульварно-Кудрявська 15Є, 180м2
- Додати в обране
-
Подiлитись посиланням
Тип ринку
Вторинний ринок
Вулиця
вул. Бульварно-Кудрявська 15Є
Назначение
Офісне приміщення
Поверх
7 Поверх
Поверховість
19 поверховий будинок
Загальна площа
180 м2
Загальний стан
З ремонтом
Ціна:
33 894 573 грн.
820 000 USD
Опис об'єкту
Офісне приміщення. Планування: open-space зона, кабінет на 4 співробітників, кімната для переговорів, кабінет керівника, кухня, 2 санвузли, простора тераса з панорамним видом на історичний центр Офіс має сучасний дизайнерський ремонт із використанням якісних матеріалів. Оснащення офісу: стильні меблі, що відповідають сучасним стандартам офісного простору, система кондиціонування та бойлер – комфортний мікроклімат у будь-яку пору року, оснащена кухня з усім необхідним для зручності співробітників.
Додаткова інформація