Оренда

Усі фото (7)
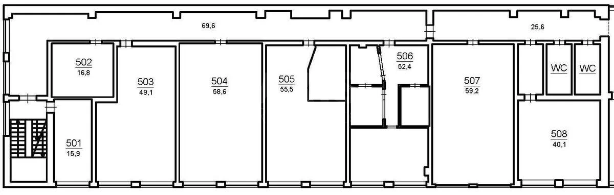
Офіс пр-т Соборності 19, 379м2
- Додати в обране
-
Подiлитись посиланням
Тип ринку
Вторинний ринок
Вулиця
пр-т Соборності 19
Назначение
Офісне приміщення
Поверх
4 Поверх
Поверховість
5 поверховий будинок
Загальна площа
379 м2
Загальний стан
Без ремонту
Ціна:
130 000 грн.
3 151 USD
Опис об'єкту
Офісне приміщення. Просторе планування. Зручна локація поруч з ЖК 'Комфорт-Таун'. Орендні канікули. Санвузли - 2 шт. Площа від 380 м.кв., 6 кабінетів. Швидке оформлення. Безперебійний інтернет. Цілодобова охорона. Зона паркування для авто.
Додаткова інформація