Аренда

Все фото (7)
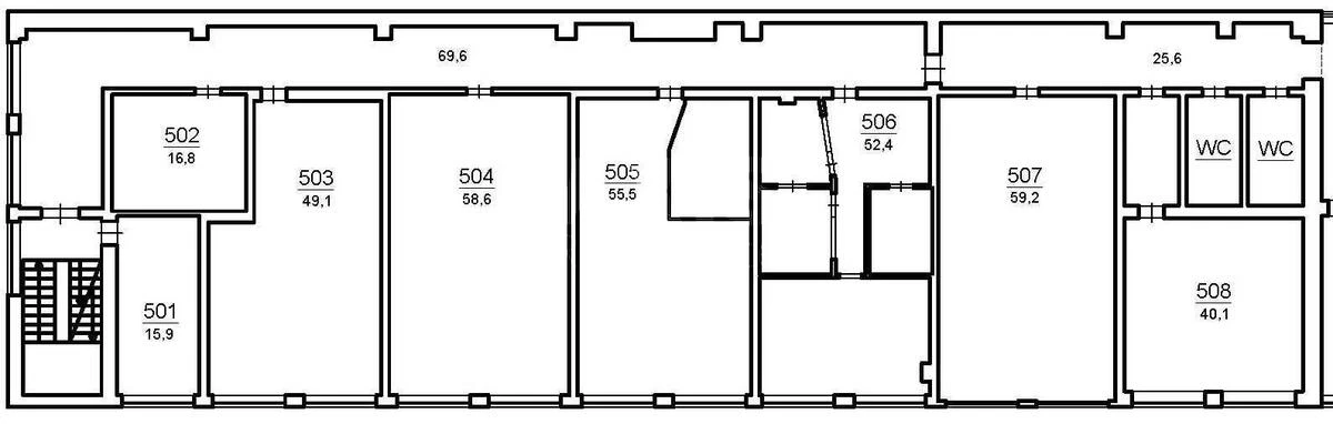
Офис пр-т Соборности 19, 379м2
- Добавить в избранное
-
Поделиться ссылкой
Тип рынка
Вторичный рынок
Улица
пр-т Соборности 19
Призначення
Офисное помещение
Этаж
4 Этаж
Этажность
5 этажный дом
Общая площадь
379 м2
Общее состояние
Без ремонта
Цена:
130 000 грн.
3 151 USD
Описание объекта
Офисное помещение. Просторная планировка. Удобная локация рядом с ЖК 'Комфорт-Таун'. Арендные каникулы. Санузлы - 2 шт. Площадь от 380 м.кв., 6 кабинетов. Быстрое оформление. Бесперебойный интернет. Круглосуточная охрана. Зона парковки для авто.
Дополнительная информация