4к квартира вул. Хмельницького Богдана 82

  • Шевченківський район вул. Хмельницького Богдана 82
  • Код: RF-3-301-101
  • Добавлено: 25.05.2026
  • Додати в обране
Тип ринку
Вторинний ринок
Вулиця
вул. Хмельницького Богдана 82
Кількість кімнат
4
Поверх
3 Поверх
Поверховість
9 поверховий будинок
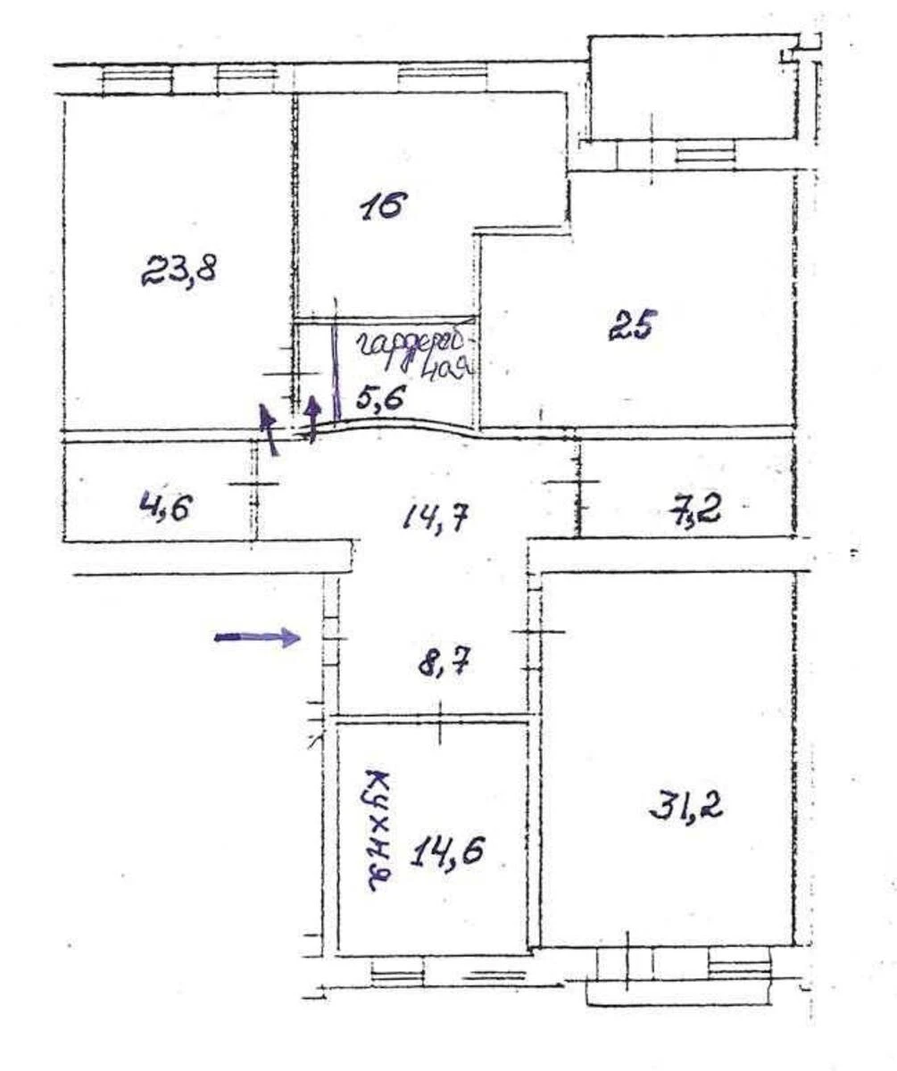
Загальна площа
155 м2
Загальний стан
З ремонтом
Ціна:
132 808 грн.
3 000 USD
Опис об'єкту

4 кімнатна квартира. Простора та комфортна квартира з якісним євроремонтом і роздільним плануванням. У квартирі три окремі спальні, два санвузли, гардеробна та продуманий простір для зручного проживання. Додатковою перевагою є наявність сауни. Є великий засклений балкон, а також відкритий фасадний балкон. Квартира повністю мебльована та укомплектована всією необхідною побутовою технікою: посудомийна машина, холодильник, варильна панель, духова шафа, мікрохвильова піч, пральна машина, пилосос, електрочайник, праска. Встановлено кондиціонери, є телевізор та Wi-Fi. Під час відключень електроенергії працює опалення та водопостачання. Сучасний новий будинок із охороною та консьєржем у під’їзді. Є ліфт, підземний паркінг, а також закріплене паркомісце для мешканців. Будинок доглянутий, із підвищеним рівнем безпеки та комфорту. Район із відмінно розвиненою інфраструктурою: поруч магазини, ресторани, аптеки, поліклініка, школи та дитячі садки, а також культурні об’єкти — театри та цирк. У пішій доступності ботанічний сад і станція метро (близько 7 хвилин). Зручна транспортна розв’язка дозволяє швидко дістатися до будь-якої частини міста.

Схожі пропозиції