4к квартира ул. Хмельницкого Богдана 82

  • Шевченковский район ул. Хмельницкого Богдана 82
  • Код: RF-3-301-101
  • Добавлено: 25.05.2026
  • Добавить в избранное
Тип рынка
Вторичный рынок
Улица
ул. Хмельницкого Богдана 82
Количество комнат
4
Этаж
3 Этаж
Этажность
9 этажный дом
Общая площадь
155 м2
Общее состояние
С ремонтом
Цена:
132 808 грн.
3 000 USD
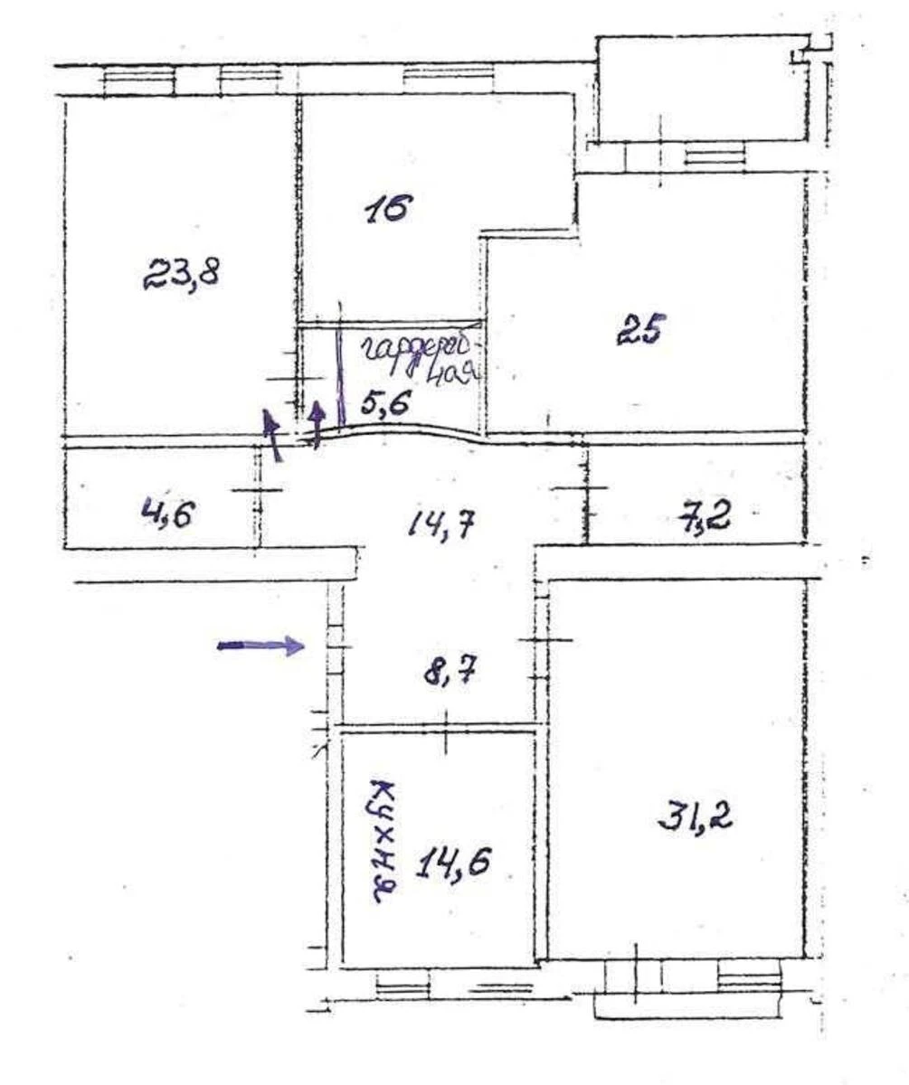
Описание объекта

4-комнатная квартира. Просторная и комфортная квартира с качественным евроремонтом и раздельной планировкой. В квартире три отдельные спальни, два санузла, гардеробная и продуманное пространство для удобного проживания. Дополнительным преимуществом является наличие сауны. Есть большой застекленный балкон, а также открытый фасадный балкон. Квартира полностью меблирована и укомплектована всей необходимой бытовой техникой: посудомоечная машина, холодильник, варочная панель, духовой шкаф, микроволновая печь, стиральная машина, пылесос, электрочайник, утюг. Установлены кондиционеры, есть телевизор и Wi-Fi. Во время отключений электроэнергии работает отопление и водоснабжение. Современный новый дом с охраной и консьержем в подъезде. Есть лифт, подземный паркинг, а также закрепленное парковочное место для жильцов. Дом ухоженный, с повышенным уровнем безопасности и комфорта. Район с отлично развитой инфраструктурой: рядом магазины, рестораны, аптеки, поликлиника, школы и детские сады, а также культурные объекты — театры и цирк. В пешей доступности ботанический сад и станция метро (около 7 минут). Удобная транспортная развязка позволяет быстро добраться до любой части города.

Похожие предложения