3к квартира вул. Жилянська 59

  • Голосіївський район вул. Жилянська 59
  • Код: RF-3-293-042
  • Добавлено: 22.03.2026
  • Додати в обране
Тип ринку
Вторинний ринок
Вулиця
вул. Жилянська 59
Кількість кімнат
3
Поверх
9 Поверх
Поверховість
17 поверховий будинок
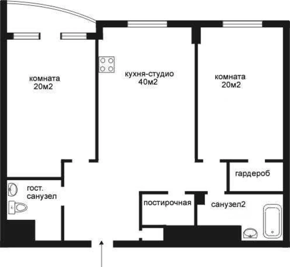
Загальна площа
110 м2
Загальний стан
З ремонтом
Ціна:
40 000 грн.
911 USD
Опис об'єкту

ЖК Дипломат Хол, 3 кімнатна квартира. Простора та сучасна квартира з якісним євроремонтом і продуманим роздільним плануванням. Помешкання повністю мебльоване та обладнане всім необхідним для комфортного проживання. У квартирі є кілька санвузлів: один із ванною, інший — з душовою кабіною, що робить житло особливо зручним для сім’ї. Квартира має балкон і лоджію, а також панорамні вікна, які наповнюють простір природним світлом. Для зберігання речей передбачено гардеробну, господарське приміщення та комору. Кухня обладнана сучасними меблями та повним набором побутової техніки: холодильником, варильною панеллю, плитою, посудомийною машиною, електрочайником. Для побуту також є пральна машина, сушильна машина, праска та пилосос. У квартирі встановлено кондиціонер і систему підігріву підлоги, що забезпечує комфорт у будь-яку пору року. Проведено швидкісний інтернет, Wi-Fi та супутникове телебачення. Опалення забезпечується власною котельнею будинку, тому під час відключень електроенергії тепло в квартирі зберігається. Будинок сучасний і добре облаштований для комфортного життя. У під’їзді працює консьєрж, встановлено ліфти, включно з вантажним. Територія перебуває під охороною, що забезпечує додаткову безпеку для мешканців. Для автомобілів передбачений гостьовий паркінг, а також зручні під’їзні шляхи до будинку. Будинок розташований у районі з дуже розвиненою інфраструктурою. У радіусі до 500 метрів знаходяться відділення банків і банкомати, аптеки, лікарня та поліклініка, магазини, супермаркети, ресторани та кафе, торговельно-розважальні центри, кінотеатр і театр. Поруч також є відділення пошти, зупинки громадського транспорту та станція метро, що забезпечує зручне сполучення з іншими районами міста. Неподалік від будинку розташований парк (приблизно до 1 км), де можна прогулюватися, відпочивати або займатися спортом на свіжому повітрі. Район поєднує комфорт міського життя з доступом до зелених зон для відпочинку.

Схожі пропозиції