3k apartment vul. Zhyljans'ka 59

  • Holosiivskyi District vul. Zhyljans'ka 59
  • Code: RF-3-293-042
  • Added by: 22.03.2026
  • Add to favorites
Market type
Secondary market
Street
vul. Zhyljans'ka 59
Number of rooms
3
Floor
9 Floor
Number of storeys
17 storey house
Total area
110 м2
General state
With repair
Price:
40 000 UAH
911 USD
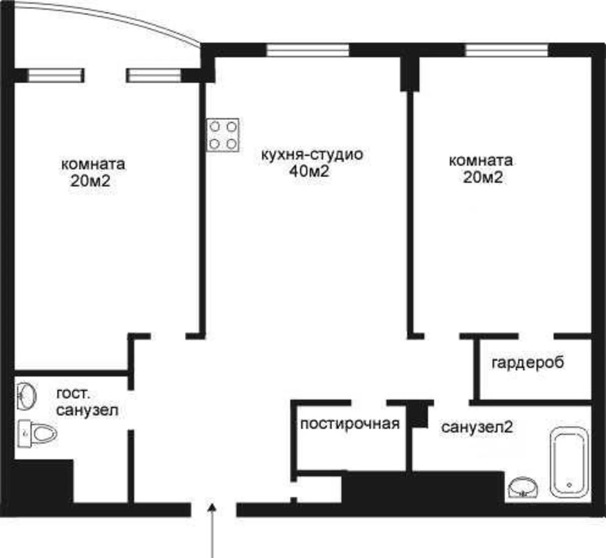
Description of the object

Diplomat Hall residential complex, 3-bedroom flat. A spacious and modern flat with high-quality refurbishment and a well-designed open-plan layout. The property is fully furnished and equipped with everything needed for a comfortable stay. The flat has several bathrooms: one with a bath, the other with a shower cubicle, making it particularly convenient for a family. The flat features a balcony and a loggia, as well as panoramic windows that fill the space with natural light. A walk-in wardrobe, utility room and storage cupboard are provided for storing belongings. The kitchen is fitted with modern furniture and a full range of appliances: a fridge, hob, oven, dishwasher and electric kettle. Household appliances include a washing machine, tumble dryer, iron and vacuum cleaner. The flat is fitted with air conditioning and underfloor heating, ensuring comfort all year round. High-speed internet, Wi-Fi and satellite TV are available. Heating is provided by the building’s own boiler room, so the flat remains warm even during power cuts. The building is modern and well-equipped for comfortable living. There is a concierge in the entrance hall, and lifts are installed, including a goods lift. The grounds are under security surveillance, providing additional safety for residents. Guest parking is provided for cars, as well as convenient access roads to the building. The building is situated in an area with highly developed infrastructure. Within a 500-metre radius, there are bank branches and ATMs, pharmacies, a hospital and a polyclinic, shops, supermarkets, restaurants and cafés, shopping and entertainment centres, a cinema and a theatre. There is also a post office, public transport stops and a metro station nearby, providing convenient connections to other parts of the city. A park is located nearby (approximately 1 km away), where you can go for a walk, relax or enjoy outdoor sports. The area combines the comforts of city life with access to green spaces for relaxation.

Similar offers