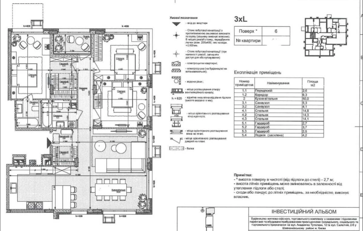
3к квартира вул. Салютна 2Б

  • Шевченківський район вул. Салютна 2Б
  • Код: SF-3-279-450
  • Добавлено: 25.05.2026
  • Додати в обране
Тип ринку
Первинний ринок
Вулиця
вул. Салютна 2Б
Кількість кімнат
3
Поверх
6 Поверх
Поверховість
9 поверховий будинок
Загальна площа
124 м2
Загальний стан
Без ремонту
Ціна:
12 076 761 грн.
272 800 USD
Опис об'єкту

ЖК Файна Таун, 3 кімнатна квартира. Квартира має шикарний панорамний вид з вікон на променадну алею. Забудовник ЖК Файна Таун - це відома компанія KAN, яка також побудувала такі ЖК, як Республіка, Respublika, Республика , Unit Home, Tetris Hall, Central Park. Житловий комплекс «Файна Таун» у Києві є одним з найбільших проєктів поквартальної забудови. Новобудова знаходиться на ділянці площею 40 га, яка утворена вулицями Естонська, Салютна, Щербаківського та Туполєва.

Схожі пропозиції