3к квартира ул. Салютная 2Б

  • Шевченковский район ул. Салютная 2Б
  • Код: SF-3-279-450
  • Добавлено: 25.05.2026
  • Добавить в избранное
Тип рынка
Первичный рынок
Улица
ул. Салютная 2Б
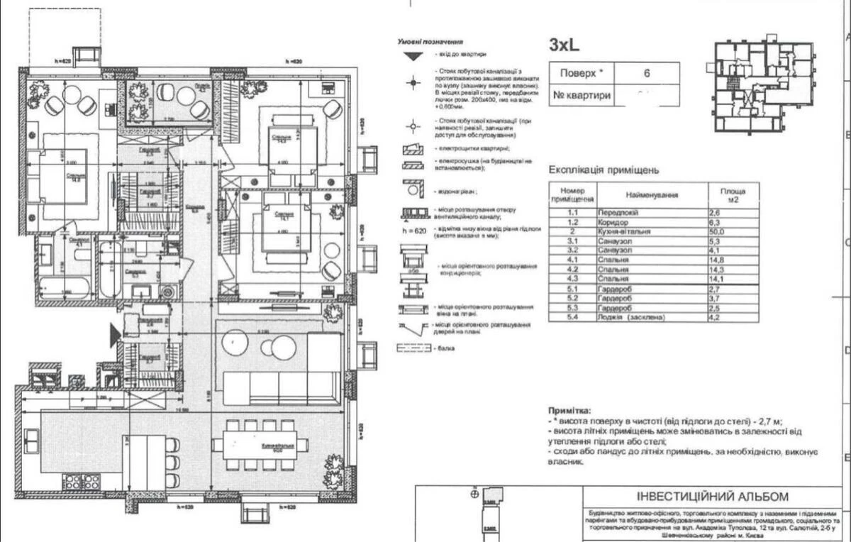
Количество комнат
3
Этаж
6 Этаж
Этажность
9 этажный дом
Общая площадь
124 м2
Общее состояние
Без ремонта
Цена:
12 076 761 грн.
272 800 USD
Описание объекта

ЖК Файна Таун, 3 комнатная квартира. Квартира имеет шикарный панорамный вид из окон на променадную аллею. Застройщик ЖК Файна Таун - это известная компания KAN, которая также построила такие ЖК, как Республика, Respublika, Республика, Unit Home, Tetris Hall, Central Park. Жилой комплекс «Файна Таун» в Киеве является одним из крупнейших проектов поквартальной застройки. Новостройка находится на участке площадью 40 га, образованном улицами Эстонская, Салютная, Щербаковского и Туполева.

Похожие предложения