Продаж

Усі фото (8)
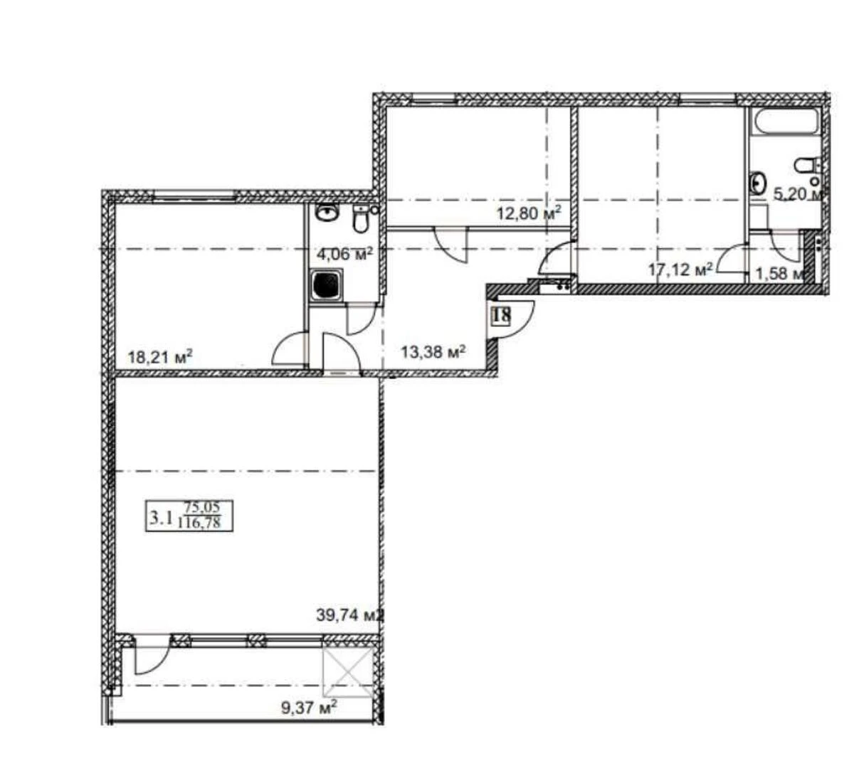
3к квартира вул. Клавдіївська 40Ж
- Додати в обране
-
Подiлитись посиланням
Тип ринку
Первинний ринок
Вулиця
вул. Клавдіївська 40Ж
Кількість кімнат
3
Поверх
7 Поверх
Поверховість
26 поверховий будинок
Загальна площа
116 м2
Загальний стан
Без ремонту
Ціна:
2 710 519 грн.
65 303 USD
Опис об'єкту
ЖК Грюнвальд. 3 кімнатна квартира. Вікна вітальні виходять на лісопарк. Стан — під ремонт. Квартира знаходиться на 7-му поверсі. В комплексі продуктові магазинчики, кафе, аптека, зоомагазин, салони краси. Гарно розвинена інфраструктура району, поряд зупинки громадського транспорту, дитячі садочки, школа, поруч 2 озера, супермаркети АТБ, Сільпо, відділення банку, пошта, 15 хвилин до ТРЦ 'Lavina', гіпермаркету 'Auchan Біличі', гіпермаркету 'Епіцентр'.
Додаткова інформація