Продажа

Все фото (8)
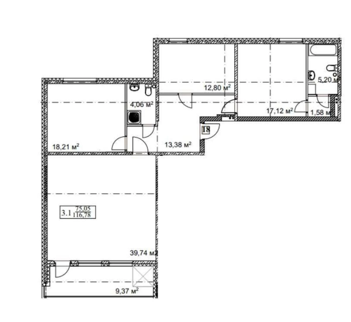
3к квартира ул. Клавдиевская 40Ж
- Добавить в избранное
-
Поделиться ссылкой
Тип рынка
Первичный рынок
Улица
ул. Клавдиевская 40Ж
Количество комнат
3
Этаж
7 Этаж
Этажность
26 этажный дом
Общая площадь
116 м2
Общее состояние
Без ремонта
Цена:
2 710 519 грн.
65 303 USD
Описание объекта
ЖК Грюнвальд. 3 комнатная квартира. Окна гостиной выходят на лесопарк. Состояние - под ремонт. Квартира находится на 7-м этаже. В комплексе продуктовые магазинчики, кафе, аптека, зоомагазин, салоны красоты. Хорошо развита инфраструктура района, рядом остановки общественного транспорта, детские сады, школа, рядом 2 озера, супермаркеты АТБ, Сильпо, отделение банка, почта, 15 минут до ТРЦ 'Lavina', гипермаркета 'Auchan Беличи', гипермаркета 'Эпицентр'.
Дополнительная информация