3к квартира вул. Грушевського Михайла 9А

  • Печерський район вул. Грушевського Михайла 9А
  • Код: RF-3-278-074
  • Добавлено: 31.05.2026
  • Додати в обране
Тип ринку
Вторинний ринок
Вулиця
вул. Грушевського Михайла 9А
Кількість кімнат
3
Поверх
6 Поверх
Поверховість
11 поверховий будинок
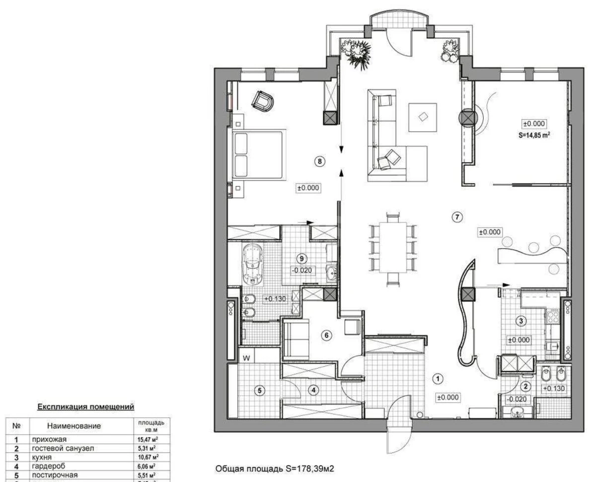
Загальна площа
180 м2
Загальний стан
З ремонтом
Ціна:
146 123 грн.
3 300 USD
Опис об'єкту

3 кімнатна квартира. Раціональне планування: простора вітальня з домашнім кінотеатром, столова зона, кухня-їдальня з островом, мастер-спальня з окремим санвузлом, дитяча або гостьова спальня, гардеробна, комора-пральня, місткі системи зберігання, гостьвий санвузол. Апартаменти обладнані системою кондиціювання та безпеки.

Схожі пропозиції