3k apartment vul. Grushevs'kogo Myhajla 9А

  • Pecherskyi District vul. Grushevs'kogo Myhajla 9А
  • Code: RF-3-278-074
  • Added by: 31.05.2026
  • Add to favorites
Market type
Secondary market
Street
vul. Grushevs'kogo Myhajla 9А
Number of rooms
3
Floor
6 Floor
Number of storeys
11 storey house
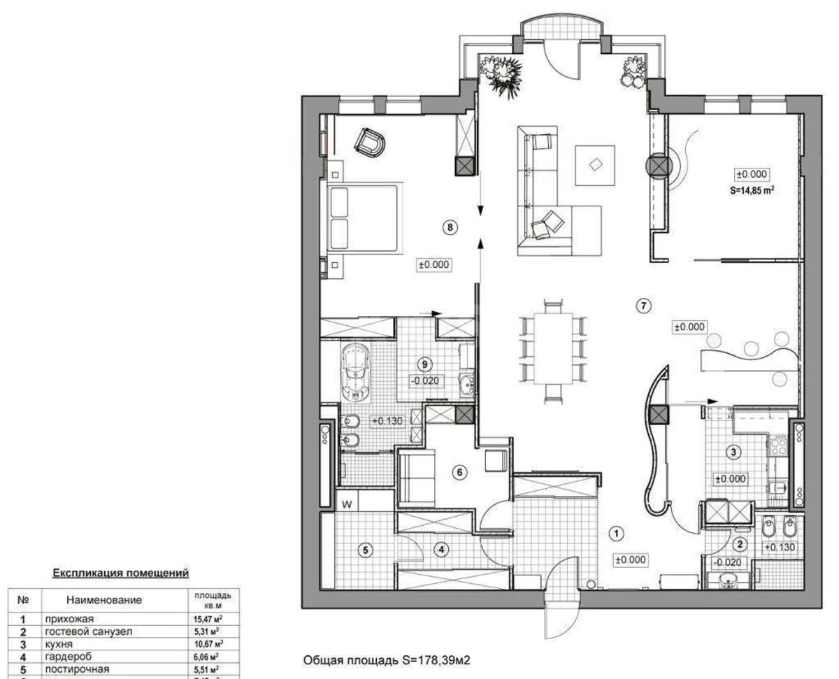
Total area
180 м2
General state
With repair
Price:
146 123 UAH
3 300 USD
Description of the object

3-room apartment. Rational layout: spacious living room with home cinema, dining area, kitchen-dining room with island, master bedroom with separate bathroom, children's or guest bedroom, dressing room, laundry room, spacious storage systems, guest bathroom. The apartment is equipped with air conditioning and security systems.

Similar offers