Продаж

Усі фото (10)
3к квартира вул. Дегтярна 20А
- Додати в обране
-
Подiлитись посиланням
Тип ринку
Первинний ринок
Вулиця
вул. Дегтярна 20А
Кількість кімнат
3
Поверх
7 Поверх
Поверховість
8 поверховий будинок
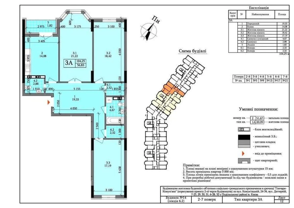
Загальна площа
104 м2
Загальний стан
Без ремонту
Ціна:
7 873 109 грн.
189 000 USD
Опис об'єкту
ЖК Подол Град, 3 кімнатна квартира. Роздільне планування — зручно для родини чи для тих, хто любить простір. Кухня 14,8м — достатньо місця і для готування, і для обідньої зони. Власна котельня — економія та незалежність. Цегляна забудова еліт-класу — якість і надійність. ЖК Podol Grad — престижне місце в серці Подолу, розвинена інфраструктура, зручна транспортна доступність.
Додаткова інформація