Sell

All photos (10)
3k apartment vul. Degtjarna 20А
- Add to favorites
-
Share link
Market type
Primary market
Street
vul. Degtjarna 20А
Number of rooms
3
Floor
7 Floor
Number of storeys
8 storey house
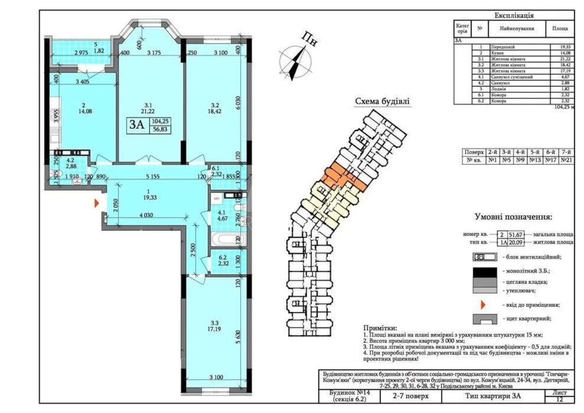
Total area
104 м2
General state
Without repair
Price:
7 873 109 UAH
189 000 USD
Description of the object
Podol Grad residential complex, 3-room apartment. Separate layout - convenient for a family or for those who love space. The kitchen is 14.8m - enough space for both cooking and dining. Own boiler room - savings and independence. Elite-class brick construction - quality and reliability. Podol Grad is a prestigious location in the heart of Podil, with developed infrastructure and convenient transport accessibility.
Additional Information