3к квартира вул. Чорновола В'ячеслава 25

  • вул. Чорновола В'ячеслава 25
  • Код: RF-3-264-949
  • Добавлено: 22.02.2026
  • Додати в обране
Тип ринку
Вторинний ринок
Вулиця
вул. Чорновола В'ячеслава 25
Кількість кімнат
3
Поверх
8 Поверх
Поверховість
22 поверховий будинок
Загальна площа
125 м2
Загальний стан
З ремонтом
Ціна:
35 000 грн.
808 USD
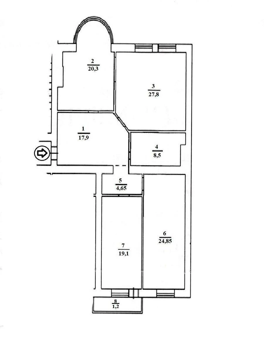
Опис об'єкту

3 кімнатна квартира. Квартира простора, яскрава, своєрідна. При вході просторий хол, з якого ви потрапляєте в кухню; вітальню; спальню; кабінет і санвузол. У робочому кабінеті просторий балкон, є сейф. Спальня виходить у двір. Стиль ремонту «Версаль»). Поруч парки, сквери, ринки, всі мережеві супермаркети, школи, садочки. Відмінна транспортна розв'язка.

Схожі пропозиції