3k apartment vul. Chornovola V'jacheslava 25

  • vul. Chornovola V'jacheslava 25
  • Code: RF-3-264-949
  • Added by: 22.02.2026
  • Add to favorites
Market type
Secondary market
Street
vul. Chornovola V'jacheslava 25
Number of rooms
3
Floor
8 Floor
Number of storeys
22 storey house
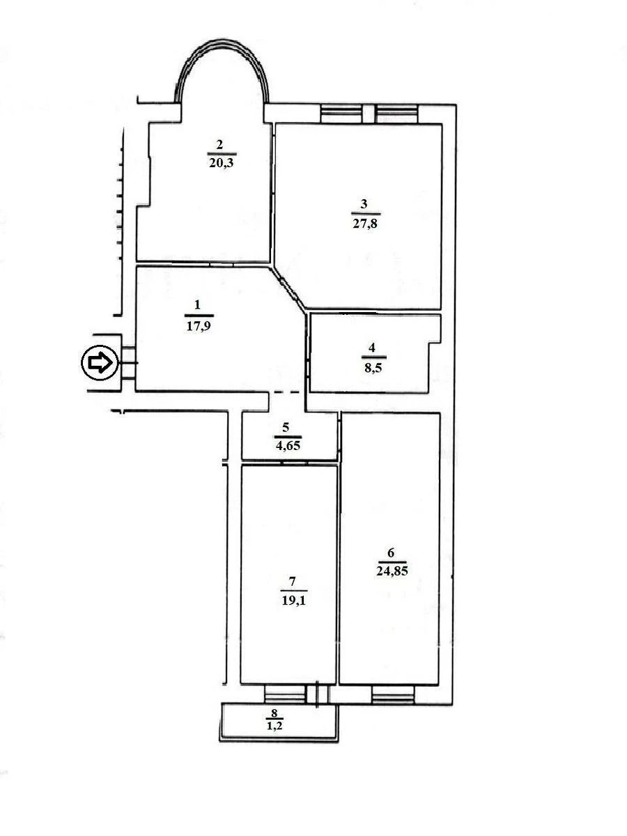
Total area
125 м2
General state
With repair
Price:
35 000 UAH
808 USD
Description of the object

3-room apartment. The apartment is spacious, bright, and unique. At the entrance, there is a spacious hall, from which you can access the kitchen, living room, bedroom, study, and bathroom. The study has a spacious balcony and a safe. The bedroom overlooks the courtyard. The renovation style is "Versailles." Nearby are parks, squares, markets, all chain supermarkets, schools, and kindergartens. Excellent transport links.

Similar offers