Продаж

Усі фото (3)
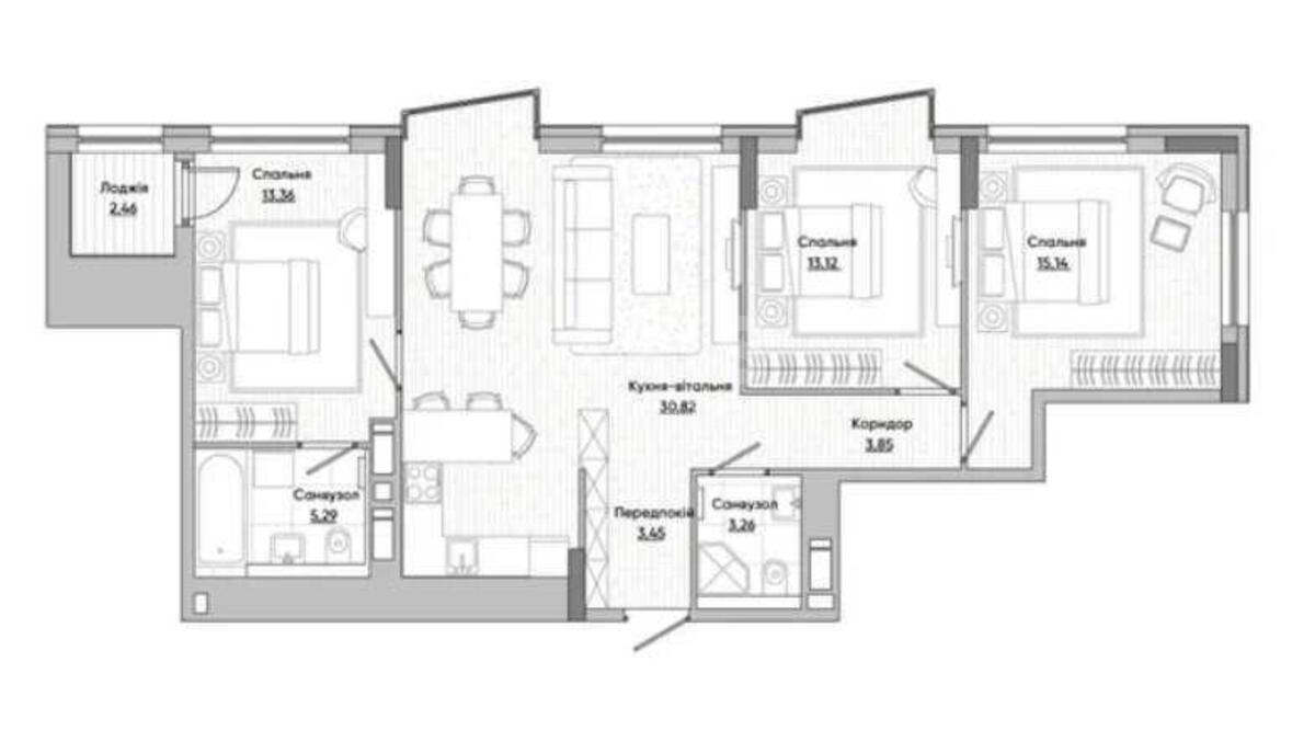
3к квартира вул. Берковецька 6
- Додати в обране
-
Подiлитись посиланням
Тип ринку
Первинний ринок
Вулиця
вул. Берковецька 6
Кількість кімнат
3
Поверх
7 Поверх
Поверховість
13 поверховий будинок
Загальна площа
90 м2
Загальний стан
Без ремонту
Ціна:
4 886 244 грн.
117 000 USD
Опис об'єкту
ЖК Lucky Land, 3 кімнатна квартира. Прибудинкова територія спроектована у форматі відкритого громадського простору з парковою зоною, місцями для відпочинку, дитячими ігровими зонами, спортивними майданчиками та прогулянковими алеями. Лоббі (дизайнерські лоббі, як в 5-ти зірковому готелі, в кожному з яких свій власний санвузол та місце для миття лапок для тварин).
Додаткова інформація