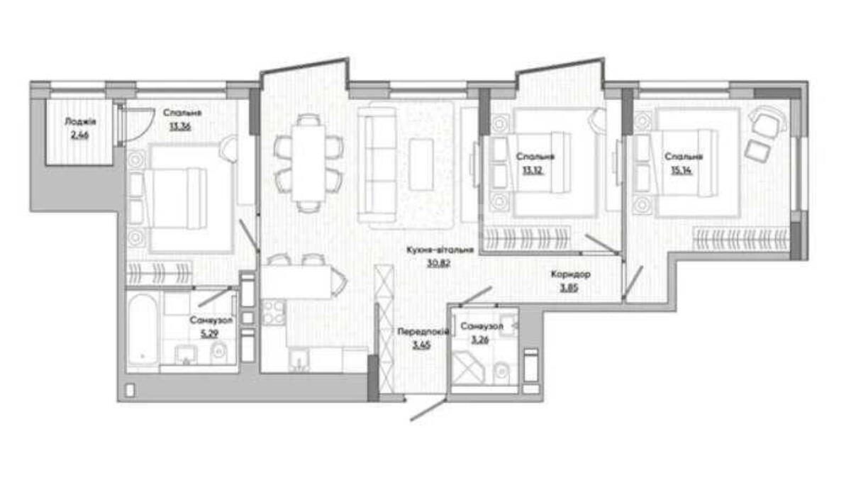
3к квартира ул. Берковецкая 6

  • Святошинский район ул. Берковецкая 6
  • Код: SF-3-228-965
  • Добавлено: 22.10.2025
  • Добавить в избранное
Тип рынка
Первичный рынок
Улица
ул. Берковецкая 6
Количество комнат
3
Этаж
7 Этаж
Этажность
13 этажный дом
Общая площадь
90 м2
Общее состояние
Без ремонта
Цена:
4 886 244 грн.
117 000 USD
  • AXIS Real Estate
  • AXIS Real Estate
  • AXIS Real Estate
Описание объекта

ЖК Lucky Land, 3 комнатная квартира. Придомовая территория спроектирована в формате открытого общественного пространства с парковой зоной, местами для отдыха, детскими игровыми зонами, спортивными площадками и прогулочными аллеями. Лобби (дизайнерские лобби, как в 5-ти звездочном отеле, в каждом из которых свой собственный санузел и место для мытья лапок для животных).

Дополнительная информация