3к квартира вул. Антоновича 136

  • Голосіївський район вул. Антоновича 136
  • Код: SF-3-265-443
  • Добавлено: 25.05.2026
  • Додати в обране
Тип ринку
Первинний ринок
Вулиця
вул. Антоновича 136
Кількість кімнат
3
Поверх
27 Поверх
Поверховість
33 поверховий будинок
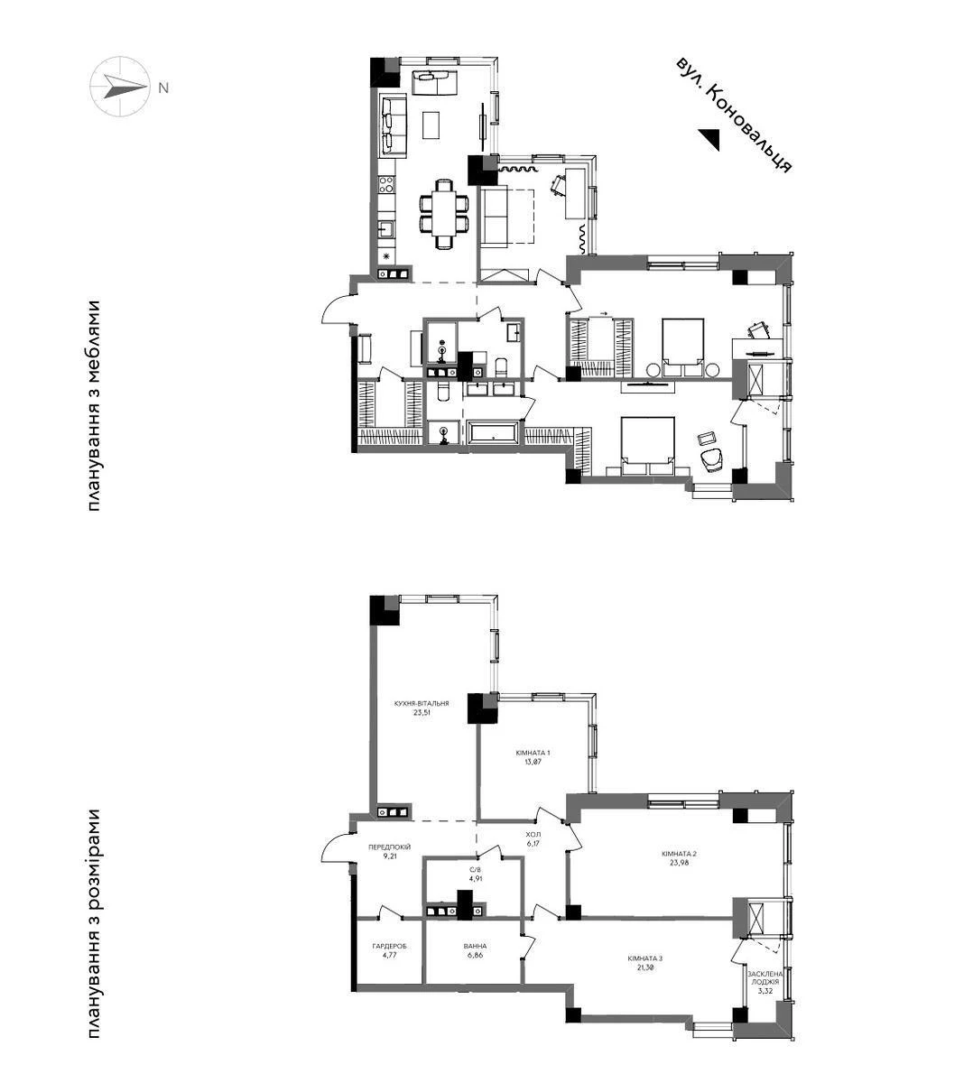
Загальна площа
118 м2
Загальний стан
Без ремонту
Ціна:
16 601 119 грн.
375 000 USD
Опис об'єкту

МФК А136 Highlight Tower, 3 кімнатна квартира. Планування: велика кухня-вітальня, три окремі кімнати, два санвузла, гардероб. Панорама на центр міста. Індивідуальне опалення, резервне живлення. Розвинена інфраструктура, зручна транспорта розв'язка, престижний район. Також в продажу є паркінг.

Схожі пропозиції