3к квартира ул. Антоновича 136

  • Голосеевский район ул. Антоновича 136
  • Код: SF-3-265-443
  • Добавлено: 25.05.2026
  • Добавить в избранное
Тип рынка
Первичный рынок
Улица
ул. Антоновича 136
Количество комнат
3
Этаж
27 Этаж
Этажность
33 этажный дом
Общая площадь
118 м2
Общее состояние
Без ремонта
Цена:
16 601 119 грн.
375 000 USD
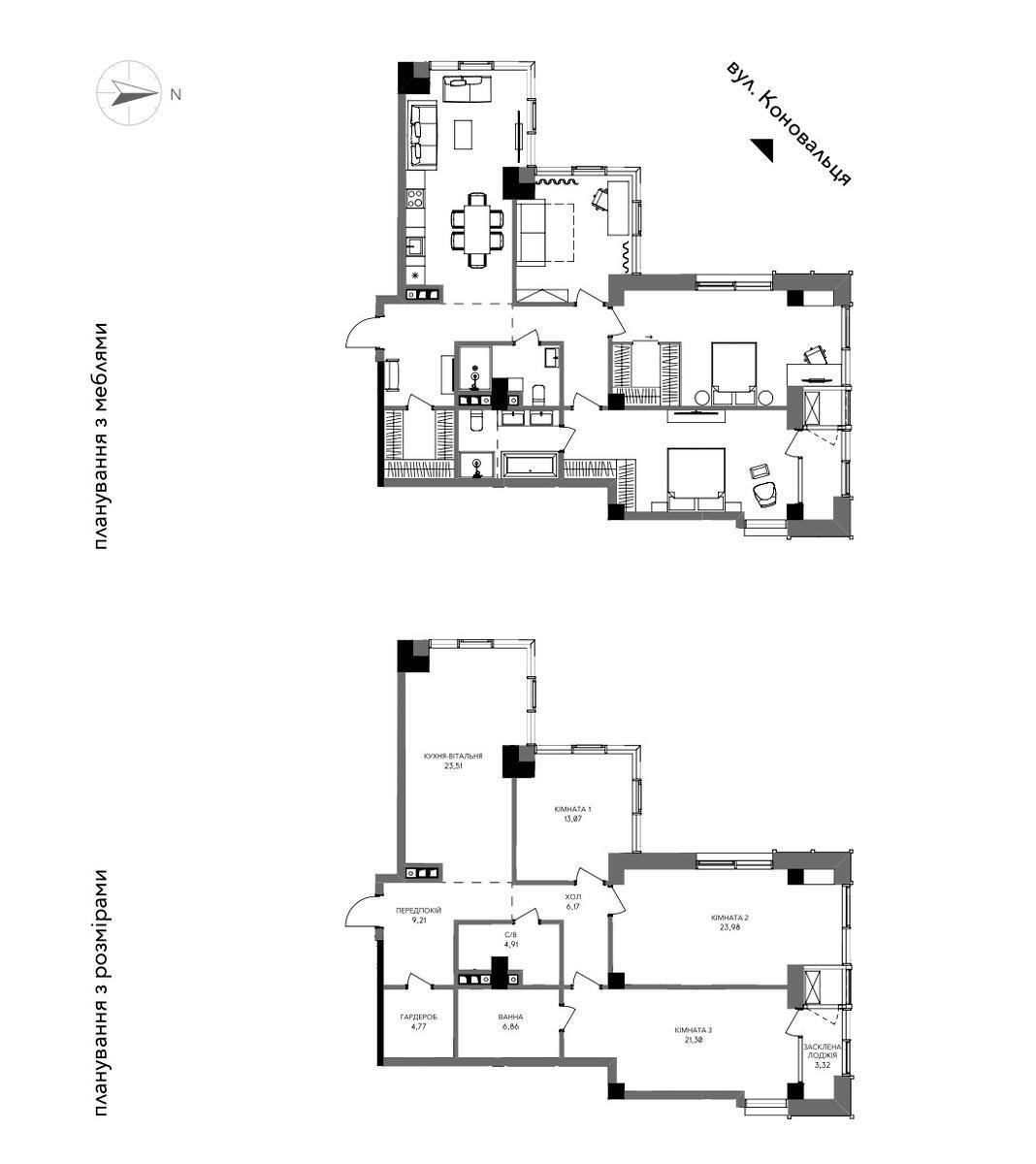
Описание объекта

МФК А136 Highlight Tower, 3 комнатная квартира. Планировка: большая кухня-гостиная, три отдельные комнаты, два санузла, гардероб. Панорама на центр города. Индивидуальное отопление, резервное питание. Развитая инфраструктура, удобная транспортная развязка, престижный район. Также в продаже есть паркинг.

Похожие предложения