3к квартира вул. Антоновича 136

  • Голосіївський район вул. Антоновича 136
  • Код: SF-3-265-430
  • Добавлено: 25.05.2026
  • Додати в обране
Тип ринку
Первинний ринок
Вулиця
вул. Антоновича 136
Кількість кімнат
3
Поверх
10 Поверх
Поверховість
33 поверховий будинок
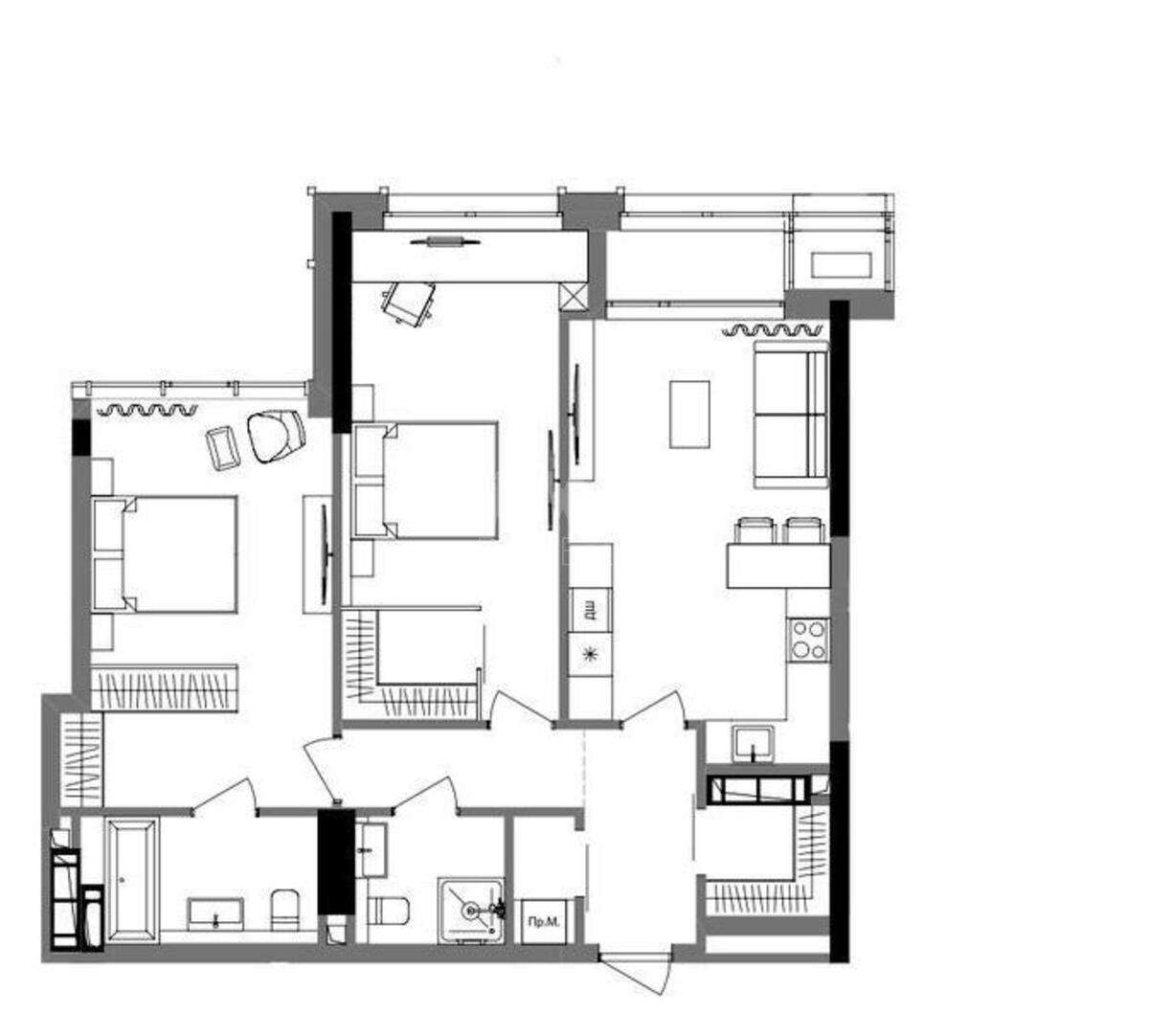
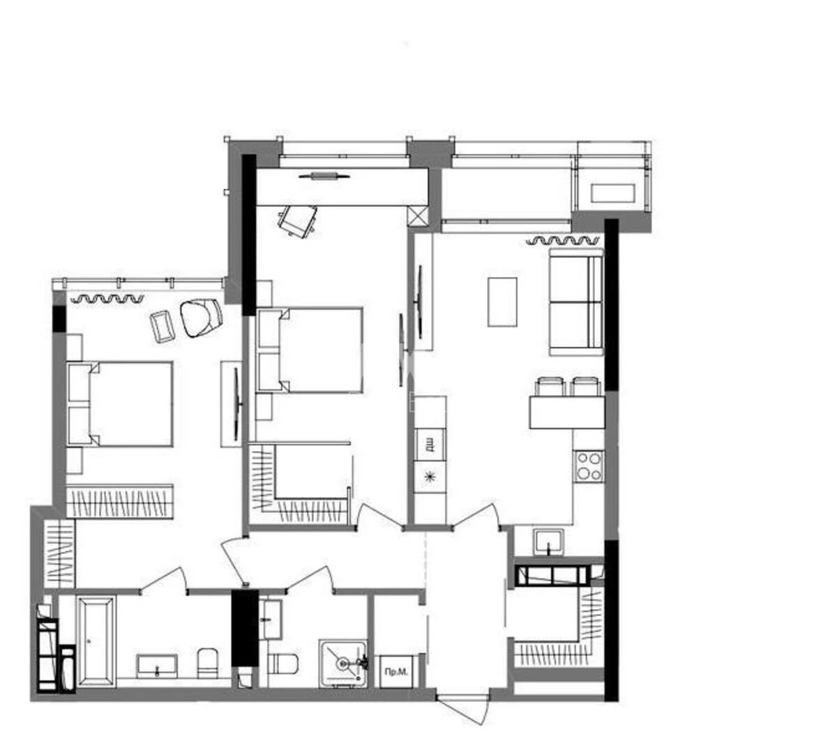
Загальна площа
81 м2
Загальний стан
Без ремонту
Ціна:
10 049 166 грн.
226 999 USD
Опис об'єкту

МФК А136 Highlight Tower, 3 кімнатна квартира. Планування: велика кухня-вітальня, дві окремі кімнати, два санвузла, пральня та гардероб. Введення будинку найближчим часом. Розвинена інфраструктура. Гарна локація.

Схожі пропозиції