3к квартира ул. Антоновича 136

  • Голосеевский район ул. Антоновича 136
  • Код: SF-3-265-430
  • Добавлено: 25.05.2026
  • Добавить в избранное
Тип рынка
Первичный рынок
Улица
ул. Антоновича 136
Количество комнат
3
Этаж
10 Этаж
Этажность
33 этажный дом
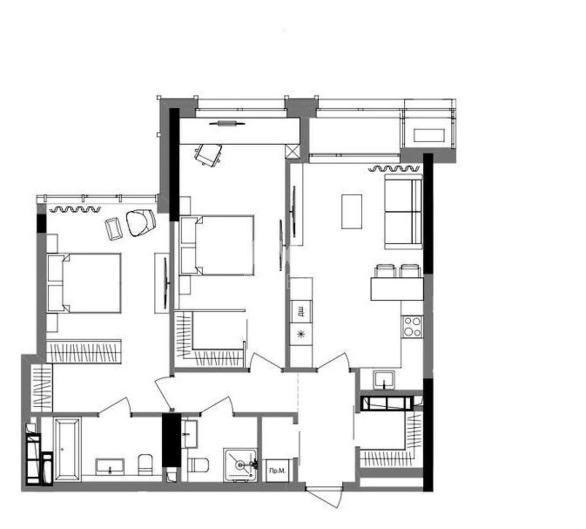
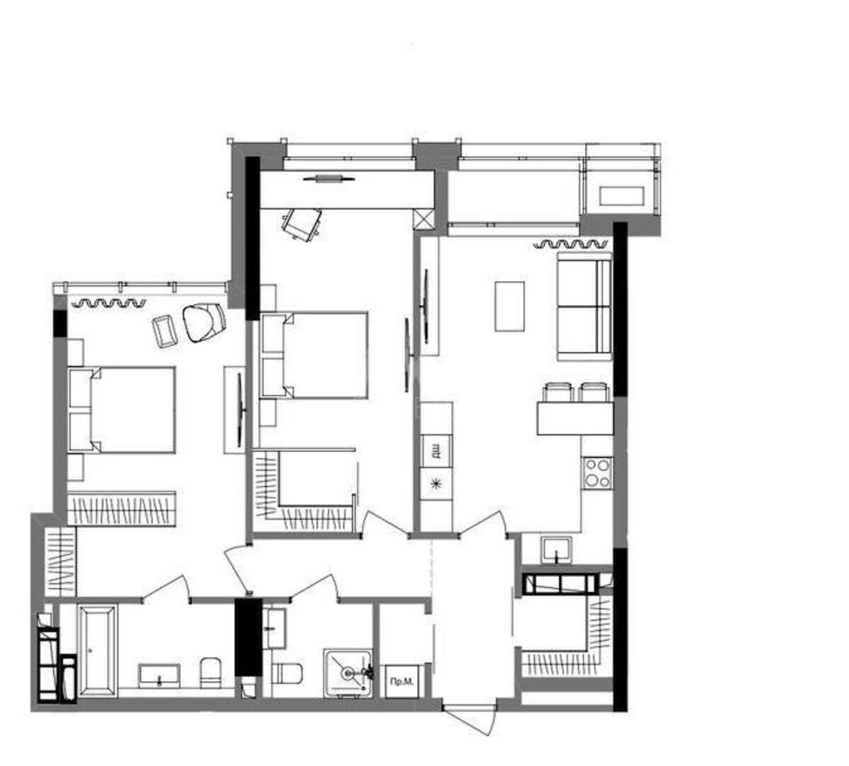
Общая площадь
81 м2
Общее состояние
Без ремонта
Цена:
10 049 166 грн.
226 999 USD
Описание объекта

МФК А136 Highlight Tower, 3 комнатная квартира. Планировка: большая кухня-гостиная, две отдельные комнаты, два санузла, прачечная и гардероб. Ввод дома в ближайшее время. Развитая инфраструктура. Хорошая локация.

Похожие предложения