3к квартира бул. Рильського Тадея 3

  • Голосіївський район бул. Рильського Тадея 3
  • Код: SF-3-279-452
  • Добавлено: 17.02.2026
  • Додати в обране
Тип ринку
Первинний ринок
Вулиця
бул. Рильського Тадея 3
Кількість кімнат
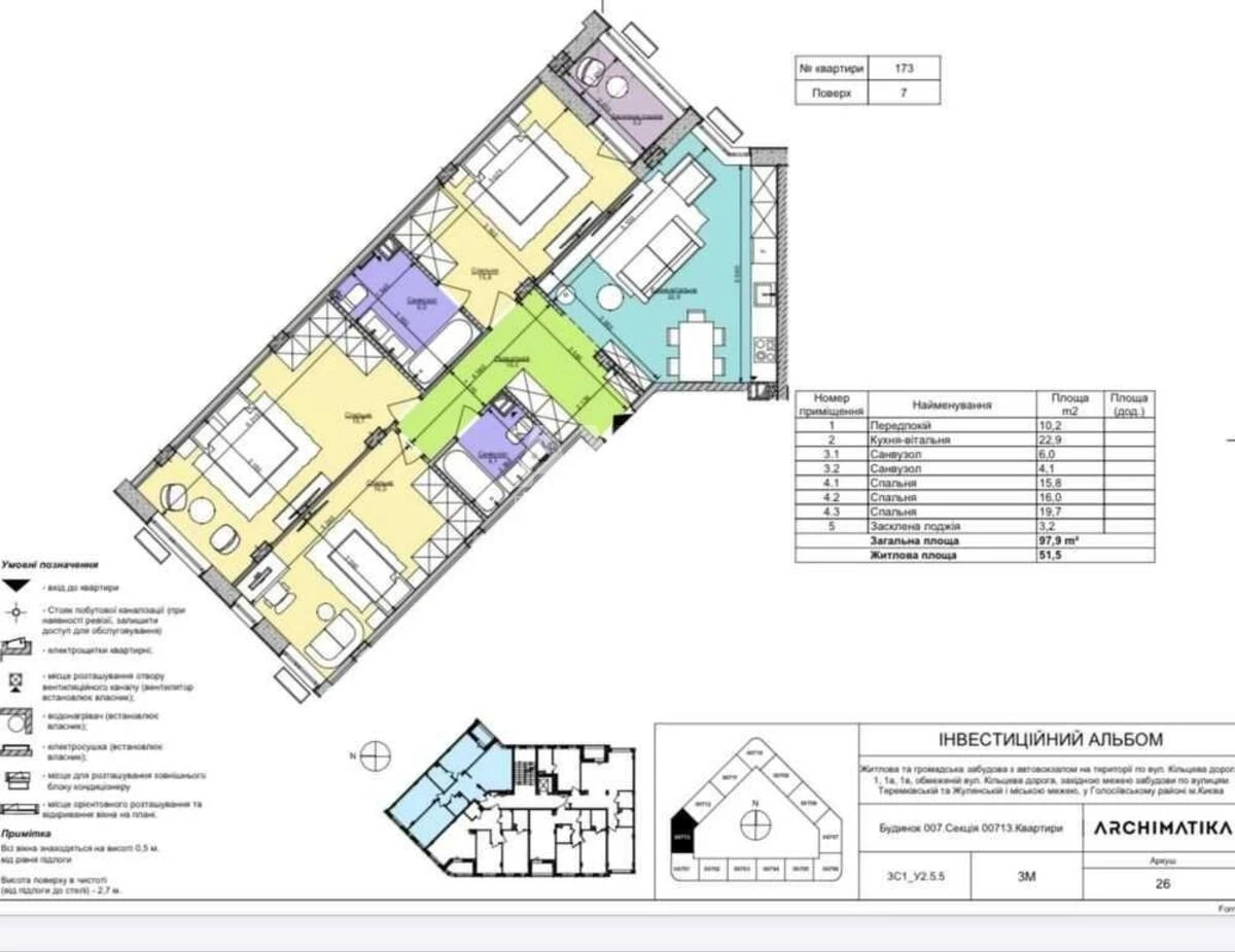
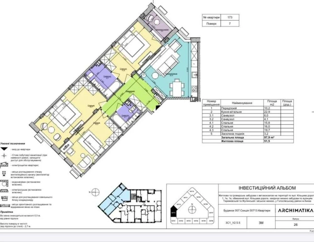
3
Поверх
7 Поверх
Поверховість
9 поверховий будинок
Загальна площа
98 м2
Загальний стан
Без ремонту
Ціна:
9 698 329 грн.
225 000 USD
Опис об'єкту

ЖК Respublika, 3 кімнатна квартира. Планування: кухня-вітальня, 3 окремі спальні, 2 санвузла. лоджія. У ЖК є все необхідне для комфортного життя: медичний комплекс, гімназія та дитячий садок, басейн, ресторани, салони краси, спортивні і дитячі майданчики, а також зони відпочинку і BBQ, зона TRX, тенісні корти, поле для гри в футбол, баскетбол, волейбол, мультиполе для дітей, місце для вигулу домашніх тварин.

Схожі пропозиції