3k apartment bul. Ryl's'kogo Tadeja 3

  • Holosiivskyi District bul. Ryl's'kogo Tadeja 3
  • Code: SF-3-279-452
  • Added by: 04.04.2026
  • Add to favorites
Market type
Primary market
Street
bul. Ryl's'kogo Tadeja 3
Number of rooms
3
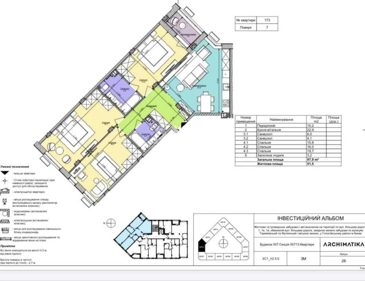
Floor
7 Floor
Number of storeys
9 storey house
Total area
98 м2
General state
Without repair
Price:
9 423 340 UAH
215 000 USD
Description of the object

Respublika residential complex, 3-bedroom flat. Layout: open-plan kitchen and living room, 3 separate bedrooms, 2 bathrooms, loggia. The residential complex has everything you need for a comfortable lifestyle: a medical centre, a school and a nursery, a swimming pool, restaurants, beauty salons, sports and children’s play areas, as well as relaxation and BBQ areas, a TRX area, tennis courts, a football pitch, basketball and volleyball courts, a multi-purpose court for children, and a dog walking area.

Similar offers