2к квартира вул. Звіринецька 47

  • Печерський район вул. Звіринецька 47
  • Код: RF-3-310-175
  • Добавлено: 28.04.2026
  • Додати в обране
Тип ринку
Первинний ринок
Вулиця
вул. Звіринецька 47
Кількість кімнат
2
Поверх
6 Поверх
Поверховість
9 поверховий будинок
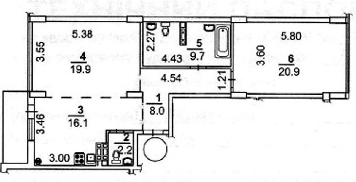
Загальна площа
80 м2
Загальний стан
З ремонтом
Ціна:
57 139 грн.
1 300 USD
Опис об'єкту

ЖК Звіринецький, 2 кімнатна квартира. Простора видова вітальня студіо, окрема спальня, 2 с/вузла (душова), пральна. Відкритий балкон-тераса з чудовим виглядом! Сигналізація, індивідуальне опалення, посудомийна машина. Ліфт спускається у підземний паркінг. Новий будинок клубного типу. Квартира із сучасним ремонтом.

Схожі пропозиції