2k apartment vul. Zvirynec'ka 47

  • Pecherskyi District vul. Zvirynec'ka 47
  • Code: RF-3-310-175
  • Added by: 28.04.2026
  • Add to favorites
Market type
Primary market
Street
vul. Zvirynec'ka 47
Number of rooms
2
Floor
6 Floor
Number of storeys
9 storey house
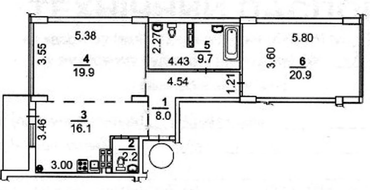
Total area
80 м2
General state
With repair
Price:
57 139 UAH
1 300 USD
Description of the object

Zvirynetskyi residential complex, 2-bedroom flat. Spacious open-plan living room, separate bedroom, 2 bathrooms (with shower), laundry room. Open-plan balcony-terrace with stunning views! Alarm system, individual heating, dishwasher. The lift goes down to the underground car park. New club-style building. The flat has been modernised.

Similar offers