2к квартира вул. Загорівська 17

  • Шевченківський район вул. Загорівська 17
  • Код: SF-3-299-316
  • Добавлено: 30.05.2026
  • Додати в обране
Тип ринку
Первинний ринок
Вулиця
вул. Загорівська 17
Кількість кімнат
2
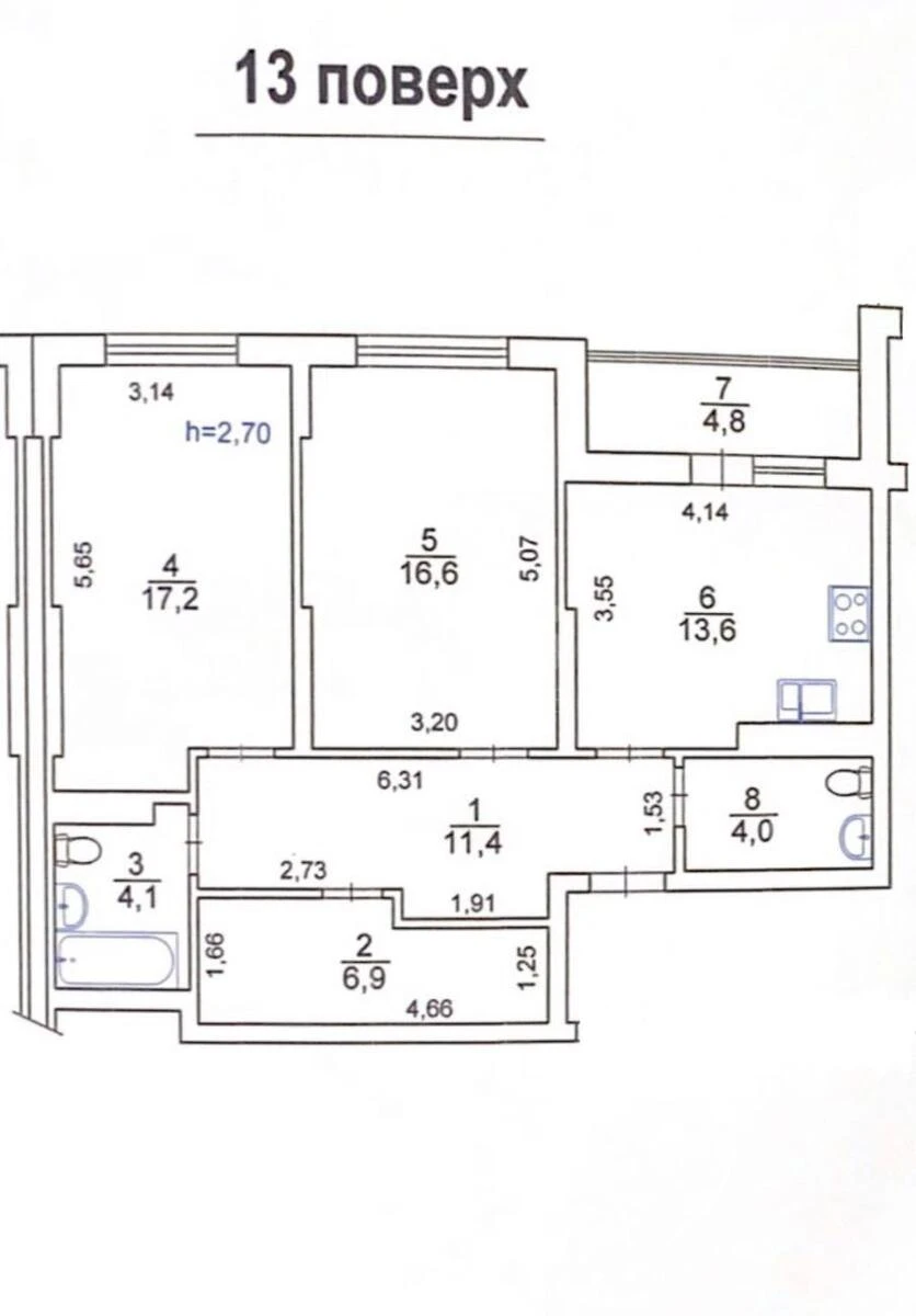
Поверх
13 Поверх
Поверховість
24 поверховий будинок
Загальна площа
78 м2
Загальний стан
Без ремонту
Ціна:
4 515 385 грн.
102 000 USD
Опис об'єкту

ЖК Багговутівській, 2 кімнатна квартира. Простора квартира у стані після будівельників, підготовлене для втілення власного дизайнерського бачення. Виконано чорнове оздоблення: залита стяжка, стіни поштукатурені. Встановлені лічильники на воду, електроенергію та опалення. Новий монолітно-каркасний будинок із цегляними стінами, введений в експлуатацію, з підключеними комунікаціями та створеним ОСББ. У будинку діє власна котельня, що забезпечує ефективне опалення. Є підземний паркінг, до якого спускається ліфт. Усі квартири вже заселені, можливо відразу розпочинати ремонтні роботи. До станції метро 'Лук’янівська' — 12 хвилин пішки. Поруч знаходиться вся необхідна соціальна інфраструктура: магазини, заклади освіти, медичні установи, кафе та зупинки громадського транспорту.

Схожі пропозиції