2к квартира ул. Загоровская 17

  • Шевченковский район ул. Загоровская 17
  • Код: SF-3-299-316
  • Добавлено: 30.05.2026
  • Добавить в избранное
Тип рынка
Первичный рынок
Улица
ул. Загоровская 17
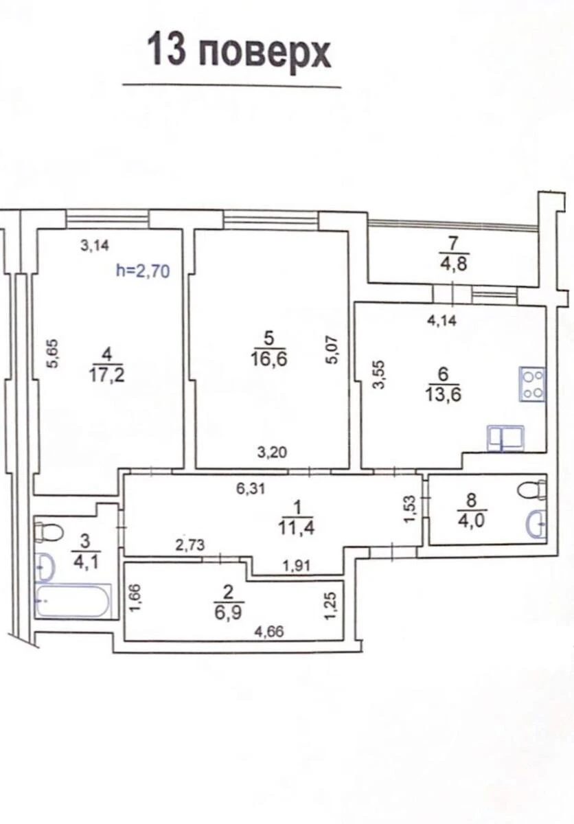
Количество комнат
2
Этаж
13 Этаж
Этажность
24 этажный дом
Общая площадь
78 м2
Общее состояние
Без ремонта
Цена:
4 515 385 грн.
102 000 USD
Описание объекта

ЖК «Багговутовская», 2-комнатная квартира. Просторная квартира в состоянии «под строителей», готовая к воплощению вашего собственного дизайнерского видения. Выполнена черновая отделка: залита стяжка, стены оштукатурены. Установлены счетчики на воду, электроэнергию и отопление. Новый монолитно-каркасный дом с кирпичными стенами, введен в эксплуатацию, с подключенными коммуникациями и созданным ОСМД. В доме действует собственная котельная, обеспечивающая эффективное отопление. Есть подземный паркинг, к которому спускается лифт. Все квартиры уже заселены, можно сразу приступать к ремонтным работам. До станции метро «Лукьяновская» — 12 минут пешком. Рядом находится вся необходимая социальная инфраструктура: магазины, учебные заведения, медицинские учреждения, кафе и остановки общественного транспорта.

Похожие предложения