2к квартира вул. Липківського Василя Митрополита 37Б

  • Солом'янський район вул. Липківського Василя Митрополита 37Б
  • Код: SF-3-273-930
  • Добавлено: 25.02.2026
  • Додати в обране
Тип ринку
Вторинний ринок
Вулиця
вул. Липківського Василя Митрополита 37Б
Кількість кімнат
2
Поверх
17 Поверх
Поверховість
25 поверховий будинок
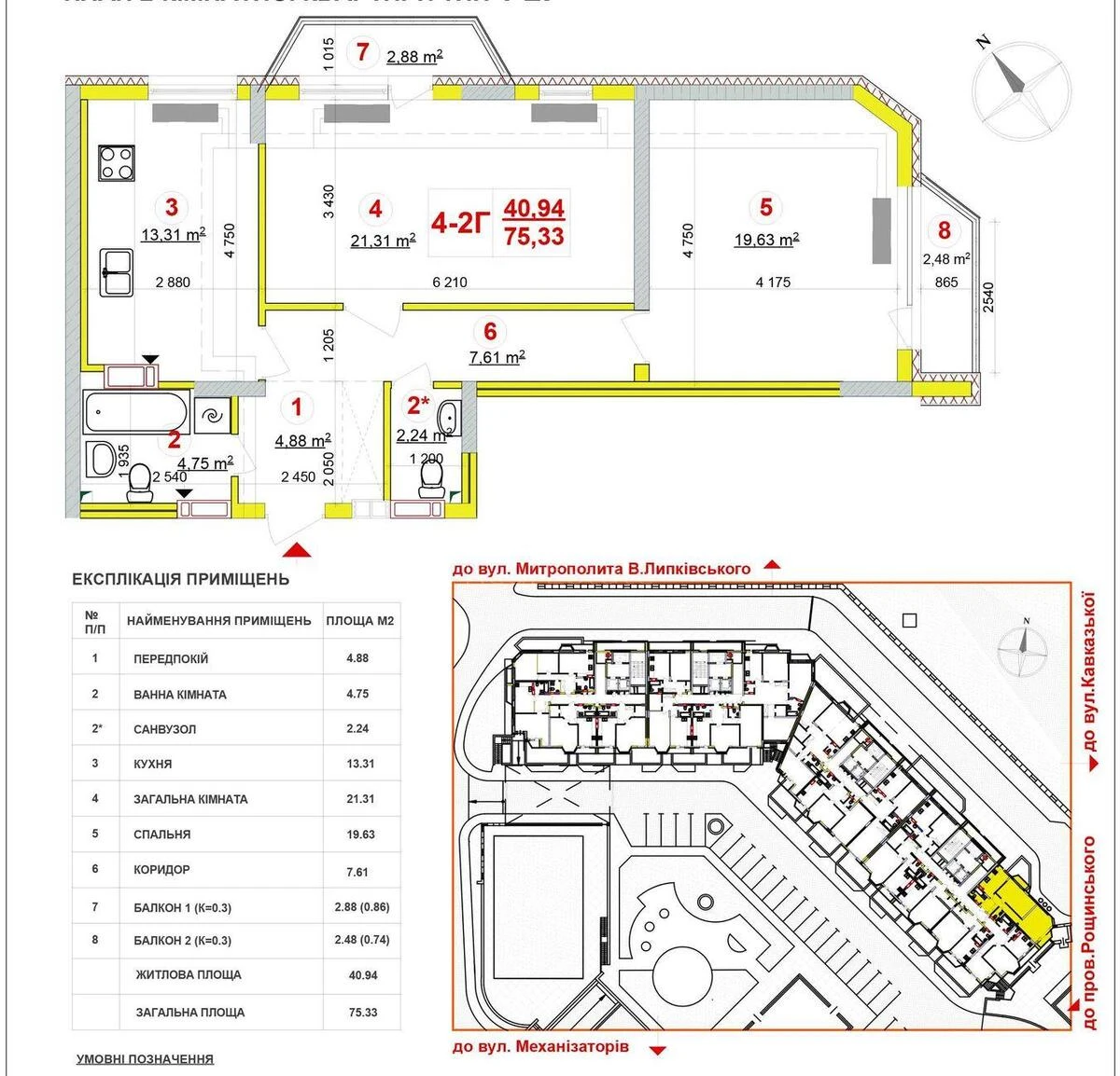
Загальна площа
76 м2
Загальний стан
Без ремонту
Ціна:
5 543 651 грн.
128 000 USD
Опис об'єкту

ЖК Династія, 2 кімнатна квартира. Простора двокімнатна квартира з роздільним плануванням — дві окремі кімнати, кухня, два санвузли та два балкони. Планування дозволяє легко перепланувати житло у трикімнатну квартиру. Квартира після будівельників, без оздоблення — чудовий варіант для тих, хто хоче реалізувати власний дизайнерський проєкт. З панорамних вікон відкривається захопливий краєвид на центр Києва. Сучасний житловий комплекс із закритою територією та охороною по периметру і в під’їздах. У будинку є ліфт, вантажний ліфт, відеоспостереження, консьєрж та автономний електрогенератор, що гарантує комфорт навіть під час відключень електроенергії. На перших поверхах розміщені комерційні приміщення — продуктовий магазин, кафе, салон краси, стоматологія, дитячий садок та інші сервіси для зручності мешканців. Житловий комплекс вирізняється відмінним розташуванням — лише 10 хвилин пішки до метро Вокзальна. У безпосередній близькості — школа, супермаркети, кафе, спортзал, клініки, салони краси та інші об’єкти міської інфраструктури. Комплекс має закритий двір із охороною та чудово доглянуту територію.

Схожі пропозиції