2k apartment vul. Lypkivs'kogo Vasylja Mytropolyta 37Б

  • Solomianskyi District vul. Lypkivs'kogo Vasylja Mytropolyta 37Б
  • Code: SF-3-273-930
  • Added by: 25.02.2026
  • Add to favorites
Market type
Secondary market
Street
vul. Lypkivs'kogo Vasylja Mytropolyta 37Б
Number of rooms
2
Floor
17 Floor
Number of storeys
25 storey house
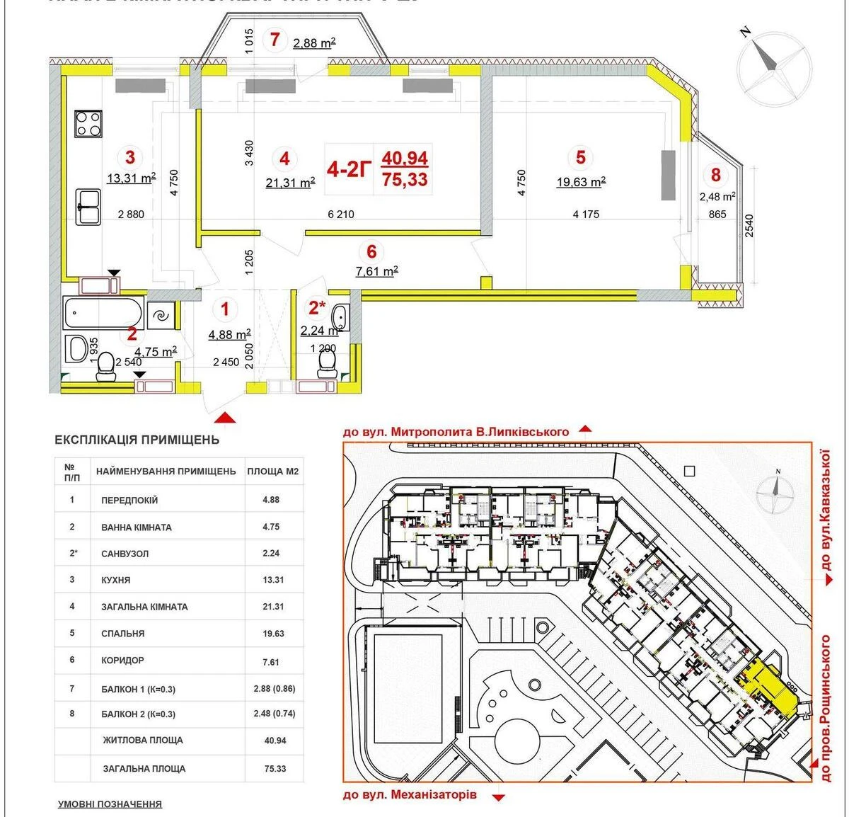
Total area
76 м2
General state
Without repair
Price:
5 543 651 UAH
128 000 USD
Description of the object

Dynasty residential complex, 2-room apartment. A spacious two-room apartment with a separate layout — two separate rooms, a kitchen, two bathrooms, and two balconies. The layout makes it easy to redesign the apartment into a three-room apartment. The apartment is post-construction, without finishing — a great option for those who want to implement their own design project. Panoramic windows offer a breathtaking view of the center of Kyiv. A modern residential complex with a closed territory and security around the perimeter and in the entrances. The building has an elevator, a freight elevator, video surveillance, a concierge, and an autonomous electric generator, which guarantees comfort even during power outages. The first floors house commercial premises — a grocery store, a cafe, a beauty salon, a dentist's office, a kindergarten, and other services for the convenience of residents. The residential complex has an excellent location — only a 10-minute walk to the Vokzalna metro station. In the immediate vicinity, there are schools, supermarkets, cafes, a gym, clinics, beauty salons, and other urban infrastructure facilities. The complex has a closed courtyard with security and well-maintained grounds.

Similar offers