2к квартира вул. Євгена Коновальця 30

  • Печерський район вул. Євгена Коновальця 30
  • Код: SF-3-276-049
  • Добавлено: 25.02.2026
  • Додати в обране
Тип ринку
Первинний ринок
Вулиця
вул. Євгена Коновальця 30
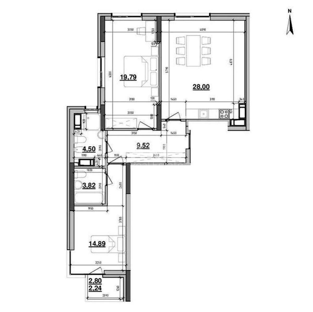
Кількість кімнат
2
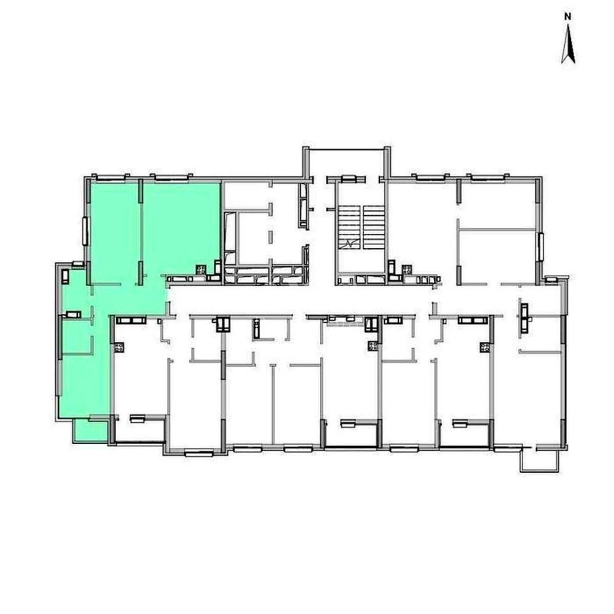
Поверх
19 Поверх
Поверховість
26 поверховий будинок
Загальна площа
82 м2
Загальний стан
Без ремонту
Ціна:
7 146 113 грн.
165 000 USD
Опис об'єкту

ЖК MAXIMA RESIDENCE, 2 кімнатна квартира. 3 боки світу: квартира має вікна на три сторони, що забезпечує безперервний доступ природного світла протягом дня. Перша спальня виходить на південний захід — чудовий захід сонця та прекрасна панорама. Друга спальня орієнтована на захід і північ — чудовий вид на захоплюючі вогні центру міста. Вітальня з кухнею має неперевершений вид на північ, частково на схід та Дніпро.

Схожі пропозиції