2к квартира ул. Евгения Коновальца 30

  • Печерский район ул. Евгения Коновальца 30
  • Код: SF-3-276-049
  • Добавлено: 25.02.2026
  • Добавить в избранное
Тип рынка
Первичный рынок
Улица
ул. Евгения Коновальца 30
Количество комнат
2
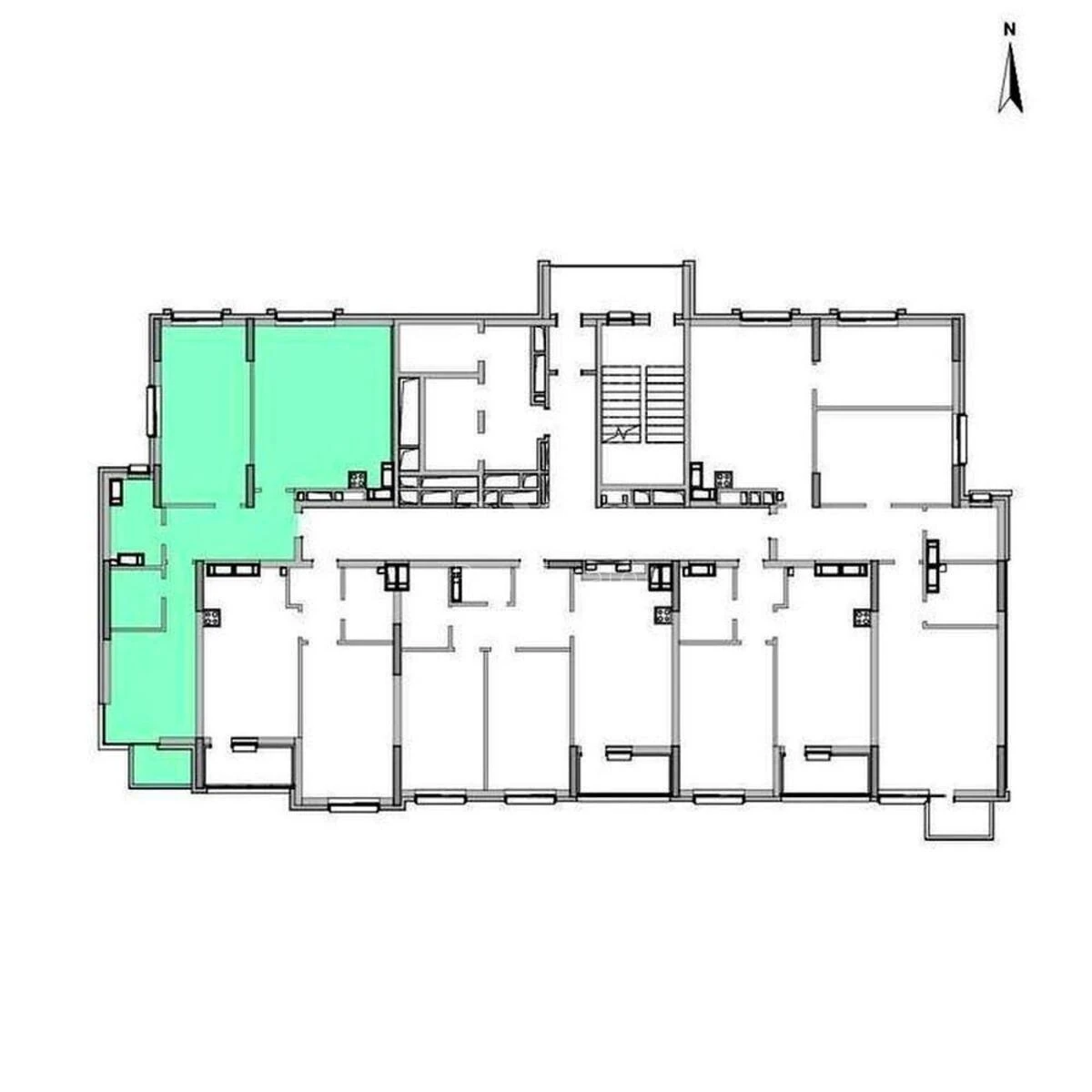
Этаж
19 Этаж
Этажность
26 этажный дом
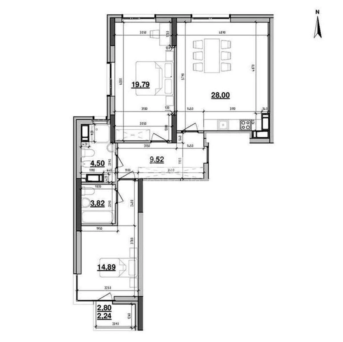
Общая площадь
82 м2
Общее состояние
Без ремонта
Цена:
7 146 113 грн.
165 000 USD
Описание объекта

ЖК MAXIMA RESIDENCE, 2 кімнатна квартира. 3 боки світу: квартира має вікна на три сторони, що забезпечує безперервний доступ природного світла протягом дня. Перша спальня виходить на південний захід — чудовий захід сонця та прекрасна панорама. Друга спальня орієнтована на захід і північ — чудовий вид на захоплюючі вогні центру міста. Вітальня з кухнею має неперевершений вид на північ, частково на схід та Дніпро.

Похожие предложения