
2к квартира пр-т Лобановського 4
- Додати в обране
-
Подiлитись посиланням
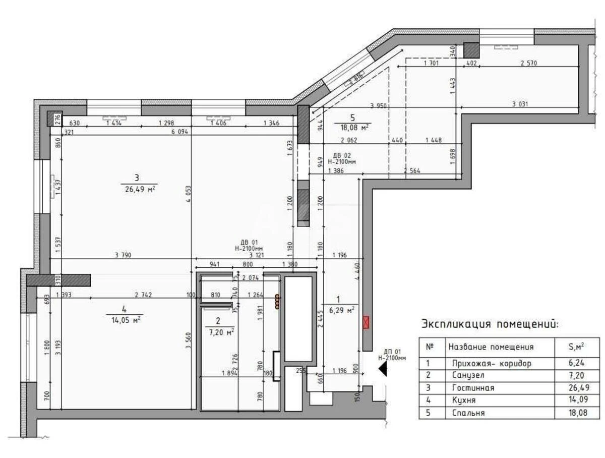
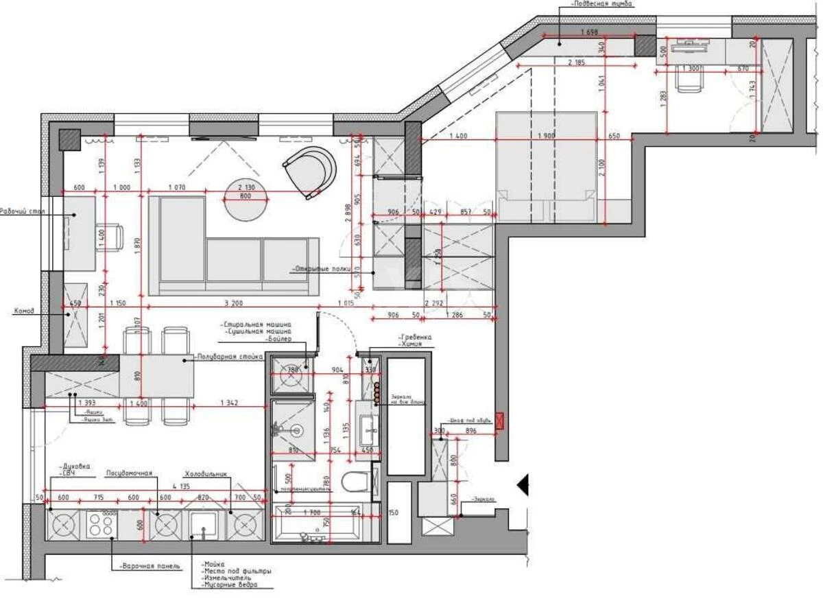
ЖК Олександрівський, 2 кімнатна квартира. З функціональним плануванням — окрема спальня та простора вітальня, об'єднана з кухнею. У спальні велике ліжко, письмовий стіл і дві шафи. У вітальні — зручний диван, обідній стіл, гарно облаштований коридор із шафою для верхнього одягу та взуття. Кухня площею 14 м² обладнана вбудованими меблями з ДСП EGGER, технікою Whirlpool (холодильник, духова шафа, мікрохвильова піч, посудомийна машина) та натуральною кам’яною стільницею. Встановлена прально-сушильна машина Samsung, бойлер Gorenje на 100 л. У ванній кімнаті — велика кварилова ванна Villeroy&Boch, тепла підлога, плитка, тропічний душ. Є також душова кабіна. Опалення централізоване, встановлено лічильники на воду, тепло, електроенергію, а також безперебійник з можливістю підключення сонячних батарей. Оснащення включає два інверторні кондиціонери з Wi-Fi Cooper&Hunter, швидкісний інтернет, LED-підсвітку по всій квартирі, підігрів підлоги, панорамні вікна. Є балкон і тераса з видом на парк та озера, без сусідніх вікон навпроти. Спальні — 18 м². Ремонт дизайнерський у стилі лофт, виконаний для себе з якісних матеріалів, стіни та стеля утеплені, на вході — посилені двері з надійними замками. В квартирі — абсолютна тиша, суміжна лише одна стіна з сусідами (кухня). Будинок оснащено трьома ліфтами (два пасажирські та один вантажний), а під ним — трирівневий підземний паркінг із цілодобовою охороною, доступом із холу та можливістю використання як укриття. Також є гостьова наземна парковка. У будинку працює консьєрж та облаштовано приємну вхідну зону. Житловий комплекс побудований за концепцією «місто в місті» з продуманою інфраструктурою та високим рівнем безпеки. Територія закрита та огороджена парканом, діє контрольно-пропускна система, цілодобова охорона та відеоспостереження, у під’їздах чергують консьєржі. Доступ мають лише мешканці та їхні гості. На території ЖК облаштовані зони відпочинку, дитячий майданчик стандартного типу, спортивні об'єкти, включаючи басейн і спортком.