
2k apartment pr-t Lobanovs'kogo 4
- Add to favorites
-
Share link
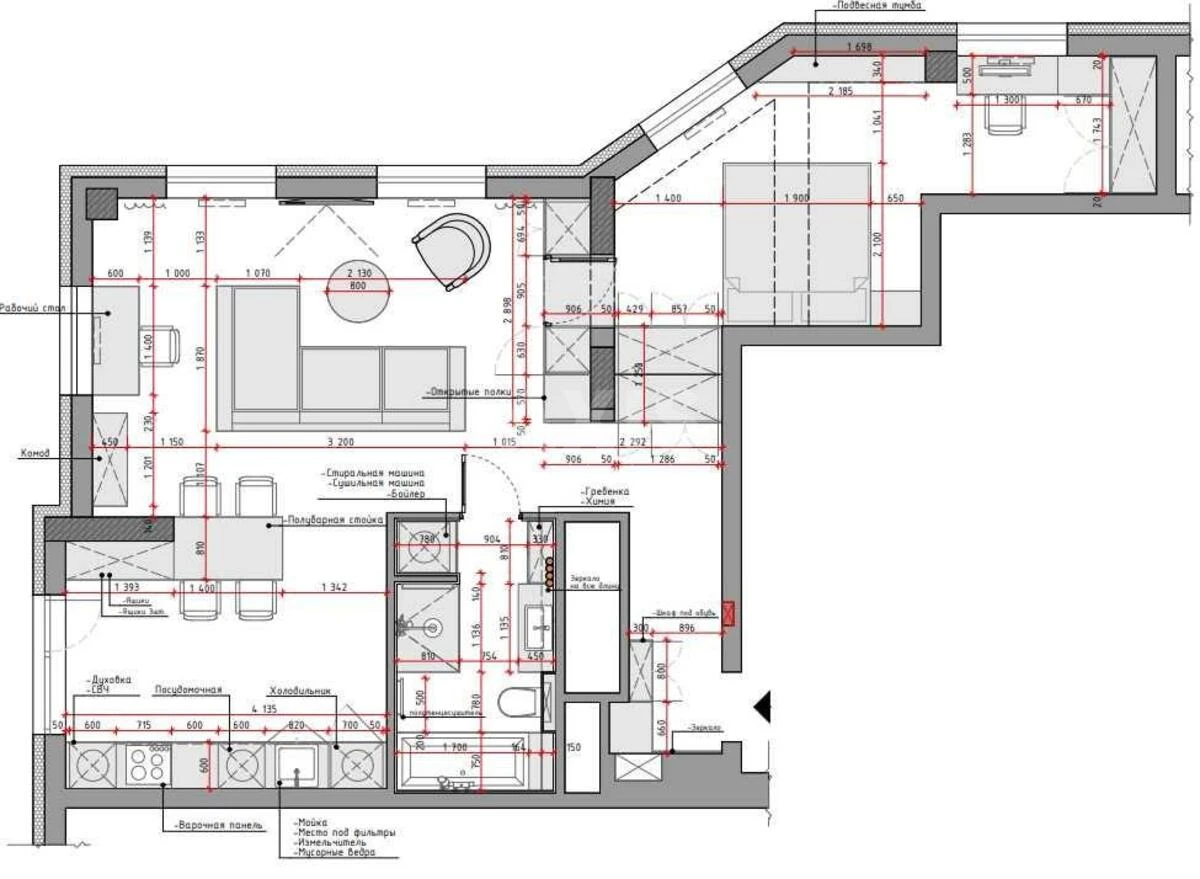
Oleksandrivskyi residential complex, 2-room apartment. With a functional layout - a separate bedroom and a spacious living room combined with a kitchen. The bedroom has a large bed, a desk and two wardrobes. The living room has a comfortable sofa, a dining table, a well-equipped corridor with a wardrobe for outerwear and shoes. The 14 m² kitchen is equipped with built-in furniture made of EGGER chipboard, Whirlpool appliances (refrigerator, oven, microwave, dishwasher) and a natural stone countertop. There is a Samsung washing machine and a 100-liter Gorenje boiler. The bathroom has a large Villeroy & Boch quartz bathtub, underfloor heating, tiles, and a rain shower. There is also a shower cabin. The heating is centralized, there are meters for water, heat, electricity, as well as an uninterruptible power supply with the ability to connect solar panels. The equipment includes two inverter air conditioners with Cooper&Hunter Wi-Fi, high-speed Internet, LED lighting throughout the apartment, floor heating, panoramic windows. There is a balcony and a terrace overlooking the park and lakes, without neighboring windows opposite. The bedrooms are 18 m². The renovation is designer loft-style, made of quality materials, the walls and ceiling are insulated, and there is a reinforced door with secure locks at the entrance. The apartment has absolute silence, with only one wall adjacent to the neighbors (kitchen). The building is equipped with three elevators (two passenger and one freight), and under it is a three-level underground parking lot with round-the-clock security, access from the lobby and the possibility of using it as a shelter. There is also a guest surface parking lot. The building has a concierge and a pleasant entrance area. The residential complex is built according to the "city within a city" concept with a well-thought-out infrastructure and a high level of security. The territory is closed and fenced, there is a control system, round-the-clock security and video surveillance, and concierges are on duty at the entrances. Only residents and their guests have access. The residential complex has recreation areas, a standard playground, sports facilities, including a swimming pool and a sports hall.