Продаж

Усі фото (14)
2к квартира бул. Лесі Українки 7
- Додати в обране
-
Подiлитись посиланням
Тип ринку
Первинний ринок
Вулиця
бул. Лесі Українки 7
Кількість кімнат
2
Поверх
21 Поверх
Поверховість
31 поверховий будинок
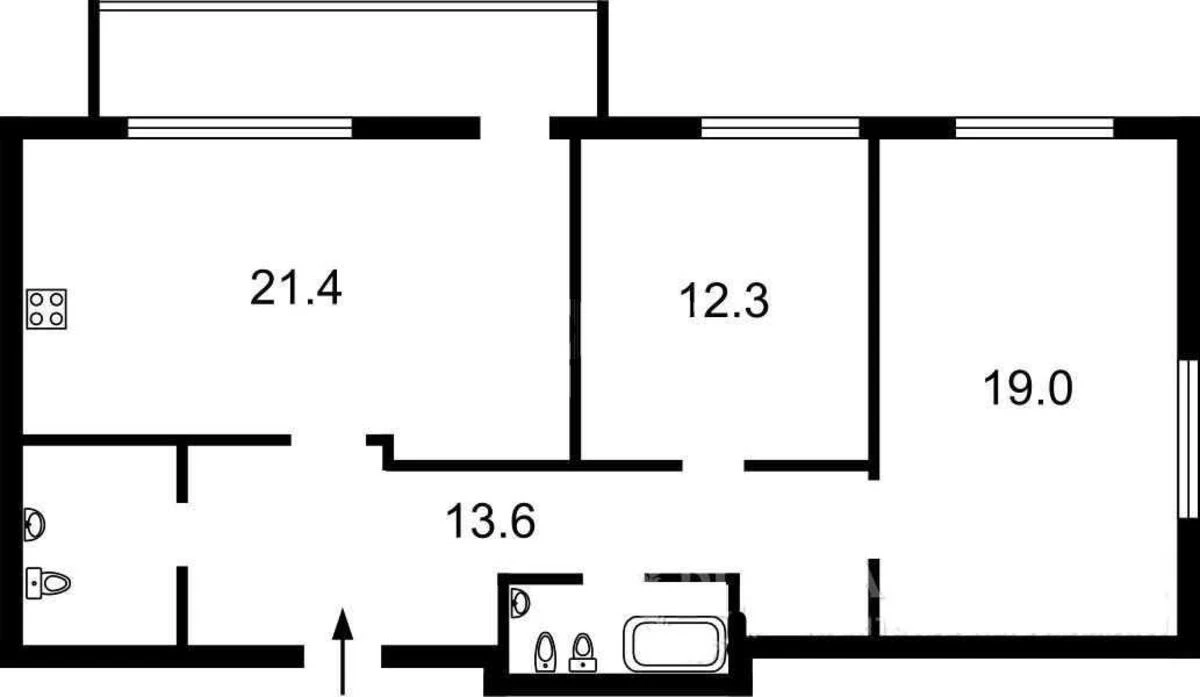
Загальна площа
81 м2
Загальний стан
Без ремонту
Ціна:
13 562 937 грн.
329 000 USD
Опис об'єкту
ЖК Jack House, 2 кімнатна квартира. Видова квартира з балконом у стані після будівельників, логічне планування, панорамне скління. Центральна локація будинку, надає максимальні зручності у проживанні. Поруч розташовані магазини, ресторани та станція метро Кловська-5 хв. До квартири є сімейне паркомісце на 2 машини за 60 000 $ в ціні.
Додаткова інформація